Appartamento ammobiliato in vendita - Via Cadempina, 6814 Cadempino
Perché amerai questa proprietà
Ampio terrazzo per relax
Spazio living personalizzabile
Caratteristiche ecologiche incluse
Organizza una visita
Prenota una visita con Bernasconi oggi!
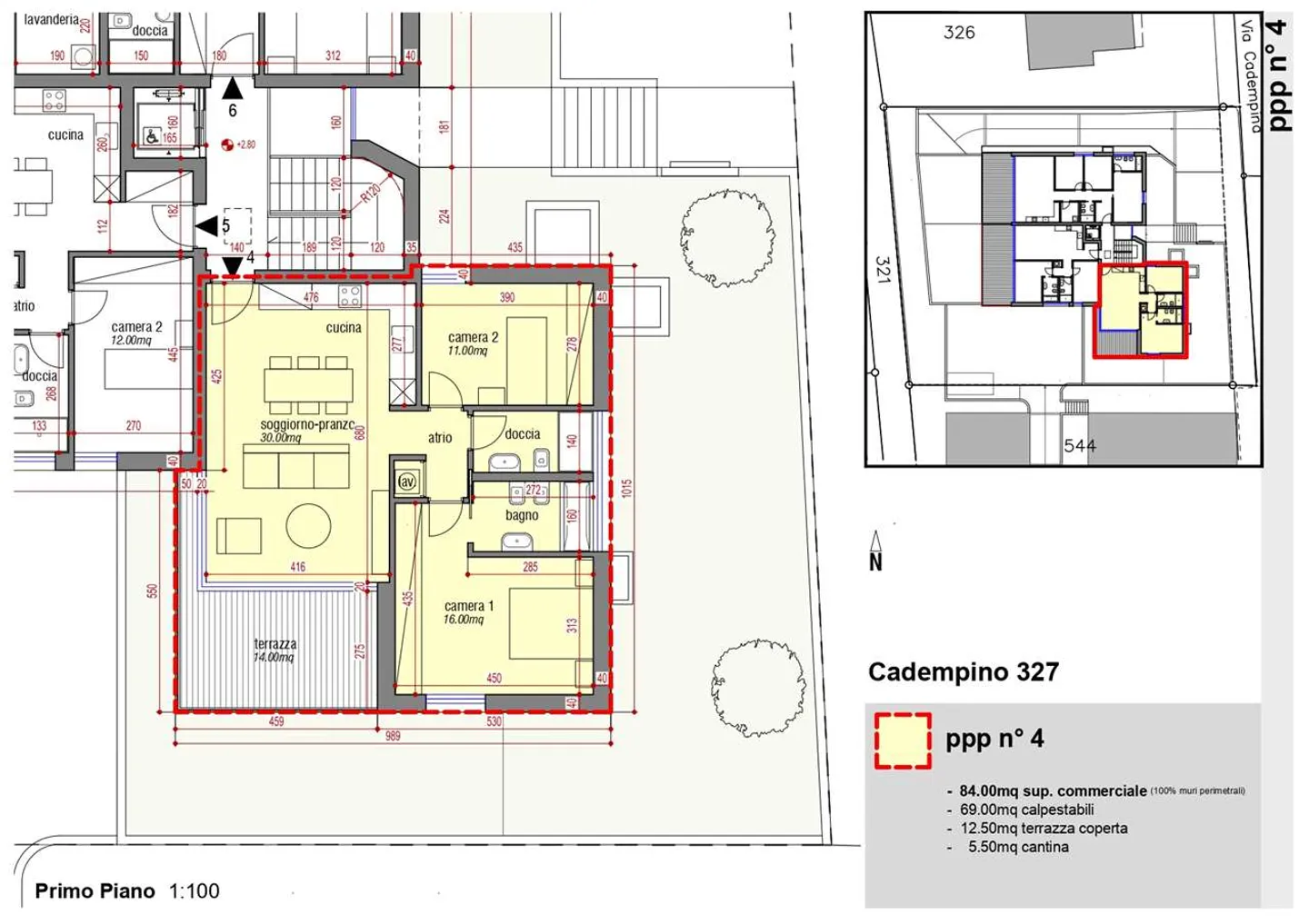
Nuova costruzione a cadempino
Cerchi un moderno appartamento con ampio terrazzo a Cadempino in una zona tranquilla?
Proponiamo in vendita un edificio di prossima realizzazione con 6 appartamenti serviti da ascensore, giardini e terrazzi privati. Situato in un'oasi di comfort, offre serenità e vicinanza ai servizi.
L'appartamento al primo piano è personalizzabile e comprende:
- Ampia zona living con soggiorno e cucina a vista che si affaccia su un ampio terrazzo
- Camera matrimoniale con bagno en suite, seconda camera, bagno co...
Dettagli immobile
- Disponibile dal
- Su accordo
- Stanze
- 3
- Anno di costruzione
- 2026
- Superficie abitabile
- 84 m²
- Piani dell'edificio
- 1



