1 / 14

Appartamento in affitto - Via Bricola, 6802 Rivera

3.5 rooms • 93 m² • 2° piano
CHF 565’000.-
CHF 6’075 m²

Perché amerai questa proprietà

Terrazza privata per relax

Design energetico efficiente

Due posti auto inclusi

Organizza una visita

Prenota una visita con Orari oggi!

Orari ufficio
L'Idea Immobiliare SA

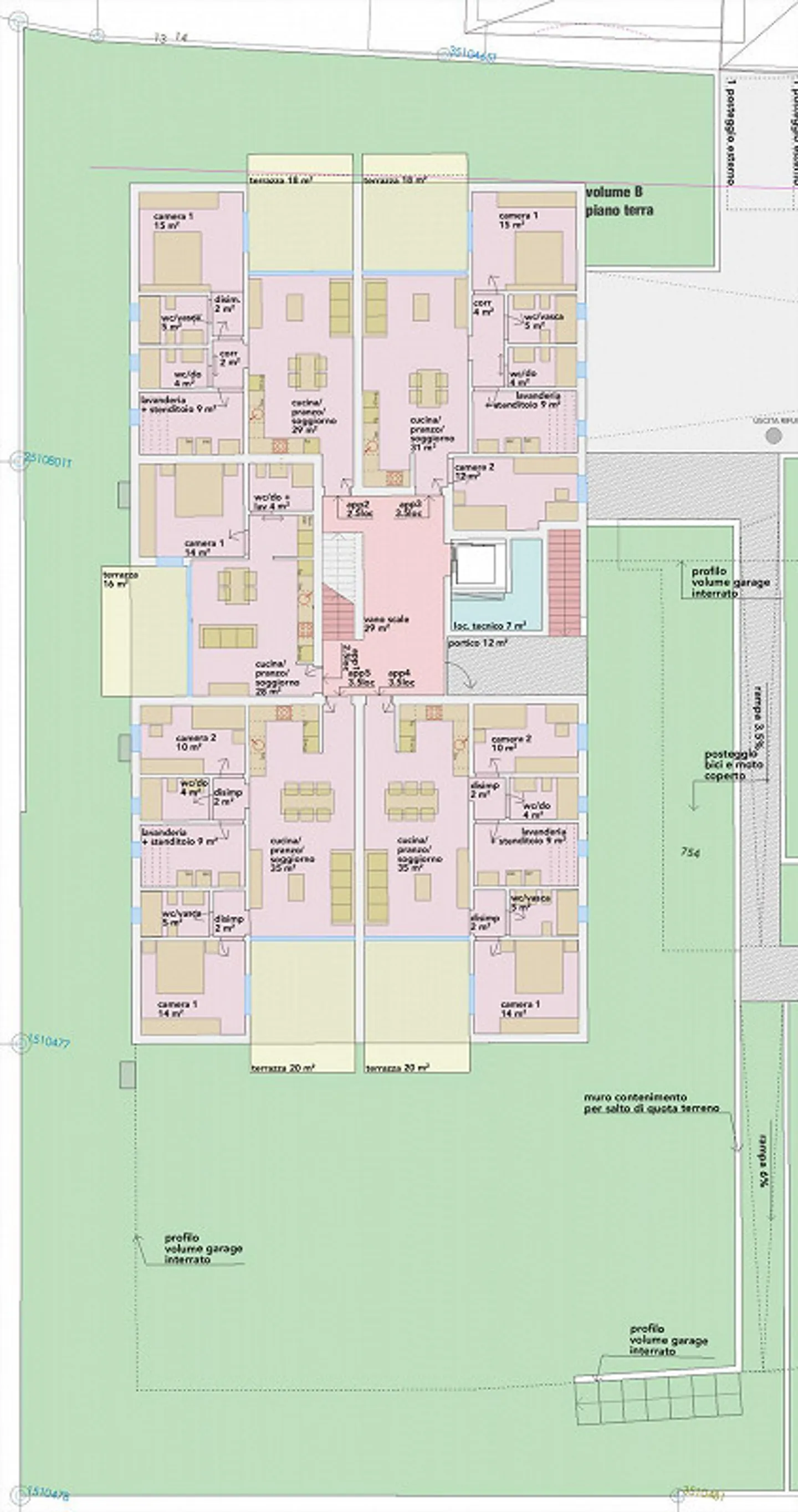
Nuovo appartamento all'ultimo piano con simpatica terrazza

La Residenza Bricola sorgerà nel cuore di Rivera, poco distante dallo Splash & SPA, dalla funicolare del Monte Tamaro e dall'imbocco dell'asse autostradale.

L'edificazione è inserita accanto ad un ampia zona verde, in pochi minuti a piedi si puo' raggiungere la fermata dell'autopostale e la stazione FFS.

L'edificazione prevede la realizzazione di due stabili indipendenti di 3 piani su due livelli differenti che distribuiscono le abitazioni tra il piano terreno ed il secondo piano.

L' autorimessa co...

Dettagli immobile

Disponibile dal
Su accordo
Stanze
3.5
Anno di costruzione
2025
Superficie abitabile
93
Piano

Caratteristiche

Garage
Balcone
Vista libera
Ascensore
Cantina
Tv via cavo
Internet
Accessibile ai disabili

Agenzia

L'Idea Immobiliare SA
Indirizzo:Giubiasco, Via Campagna, 6512
Ref: 20723

Località

Via Bricola, 6802 Rivera

Fonti