Appartamento in vendita - Stradone Vecchio Sud, 6710 Biasca
Perché amerai questa proprietà
Spazio living open-space
Dotato di pannelli solari
Ottimo potenziale di affitto
Organizza una visita
Prenota una visita oggi!
Appartamenti con una stanza a Biasca
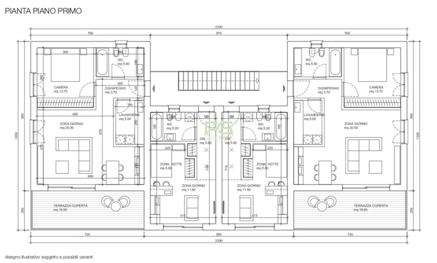
A Biasca, sono in vendita 2 appartamenti monolocale di recente costruzione.
L'edificio in cui si trovano è composto da sole 6 unità. Al piano terra ci sono due appartamenti e le cantine, mentre al primo piano si trovano gli altri 4 appartamenti, compresi i 2 monolocale.
Entrambi gli appartamenti hanno una superficie di 37,8 m² e dispongono di uno spazio aperto con soggiorno, cucina e camera da letto, oltre a un bagno con doccia e attacchi per lavatrice e asciugatrice.
L'edificio è dotato di un i...
Dettagli immobile
- Disponibile dal
- Su accordo
- Stanze
- 1
- Anno di costruzione
- 2019
- Superficie abitabile
- 38 m²
- Piano
- 1°



