Appartamento adatto alle famiglie con giardino d'inverno in una posizione tranquilla
Perché amerai questa proprietà
Balconi soleggiati & verande
Materiali di alta qualità
Parcheggio privato incluso
Organizza una visita
Prenota una visita con Leutwyler oggi!
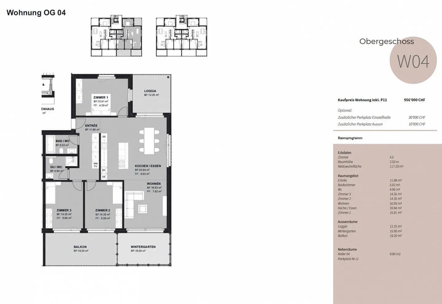
Il progetto di nuova costruzione, che dovrebbe essere completato nell'autunno del 2026, comprende due moderne case plurifamiliari con sei appartamenti ciascuna, in standard Minergie-P.
Il concetto accuratamente pensato impressiona con una scala inondata di luce, un sistema di ascensore confortevole e solo due appartamenti per piano, creando un'atmosfera abitativa piacevole e un alto livello di privacy.
I quattro appartamenti all'ultimo piano impressionano con balconi soleggiati e ampi giardini d'i...
Dettagli immobile
- Disponibile dal
- Su accordo
- Stanze
- 4.5
- Anno di costruzione
- 2026
- Superficie abitabile
- 117 m²
- Piano
- 1°
- Piani dell'edificio
- 3



