Appartamento in vendita - Ruchholzstrasse, 4103 Bottmingen
Perché amerai questa proprietà
Stanza hobby luminosa
Giardino e balcone soleggiati
Posizione familiare nel villaggio
Organizza una visita
Prenota una visita con Dominique oggi!
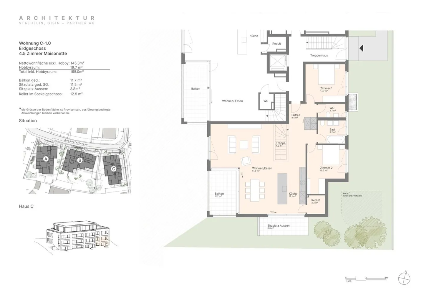
Benvenuti nel vostro nuovo appartamento da sogno in Ruchholzstrasse! Questo elegante appartamento di 4,5 stanze offre 165 m² di puro comfort abitativo ai piani terra e seminterrato. Perfetto per famiglie che cercano una casa moderna e tranquilla. L'appartamento offre al piano seminterrato:
* una stanza hobby sviluppata e riscaldata con luce naturale e finestre e porta finestra
* camera da letto o ufficio con accesso all'area salotto coperta
* bagno con doccia e WC
* cantina nell'appartamento
Al piano...
Dettagli immobile
- Disponibile dal
- Su accordo
- Stanze
- 4.5
- Bagni
- 2
- Anno di costruzione
- 2026
- Superficie abitabile
- 165 m²
- Superficie utilizzabile
- 178 m²
- Superficie terrazza
- 20 m²
- Superficie balcone
- 12 m²
- Piano
- Terra
- Piani dell'edificio
- 3



