Appartamento in vendita - Ruchholzstrasse, 4103 Bottmingen
Perché amerai questa proprietà
Stanza hobby riscaldata con luce
Ampio balcone esposto a ovest
Quartiere adatto alle famiglie
Organizza una visita
Prenota una visita con Dominique oggi!
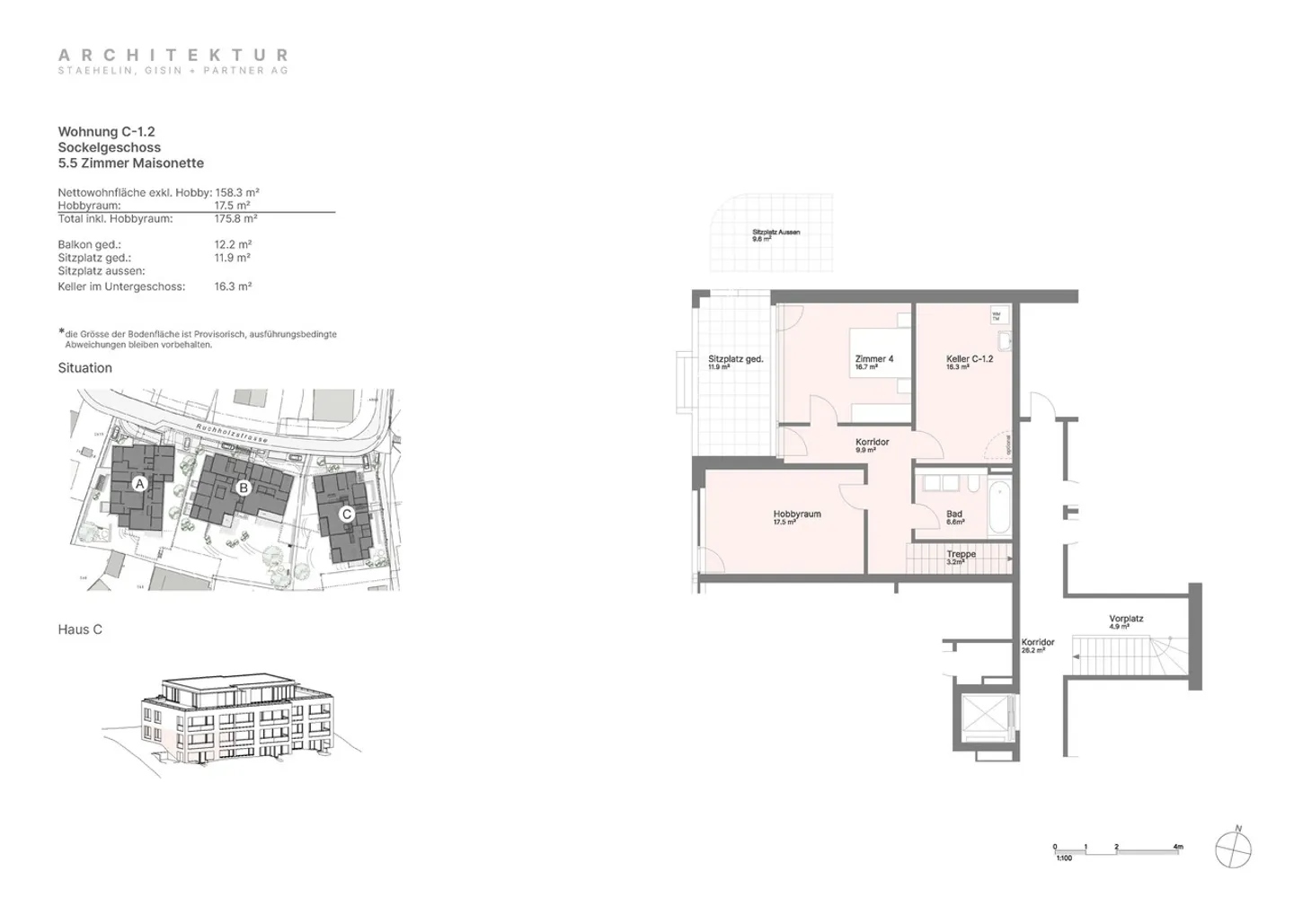
Appartamento maisonette al piano terra di nuova costruzione in una bella posizione (c-1.2)
Benvenuti nel vostro nuovo appartamento da sogno in Ruchholzstrasse! Questo elegante appartamento di 3,5 stanze può essere utilizzato anche come un appartamento di 4,5 stanze con la stanza hobby sviluppata. Vi offre 151 m² di puro comfort abitativo al piano terra e al piano interrato. Perfetto per famiglie che cercano una casa moderna e tranquilla.
L'appartamento offre al piano interrato:
* una stanza hobby sviluppata e riscaldata con luce naturale e finestre con porta finestra
* una camera da let...
Dettagli immobile
- Disponibile dal
- 11.11.2025
- Stanze
- 5.5
- Anno di costruzione
- 2026
- Superficie abitabile
- 176 m²
- Superficie utilizzabile
- 161 m²
- Piano
- Terra
- Piani dell'edificio
- 3



