Appartamento in vendita - Route Du Lac, 1026 Denges
Perché amerai questa proprietà
Fascino di un edificio storico
Balcone spazioso di 19m2
Design cucina aperta
Organizza una visita
Prenota una visita oggi!
DENGES, residenza con ascensore, 3 ultimi lotti disponibili!
VISITE ANCHE NEI WEEKEND!
PERMESSO IN VIGORE
Sarete affascinati da questa magnifica promozione in un edificio risalente al 1800. Un matrimonio tra antico e moderno, travi a vista!
Inizio dei lavori: ultimo trimestre 2025
Vendita a termine con fondi propri versati dal notaio
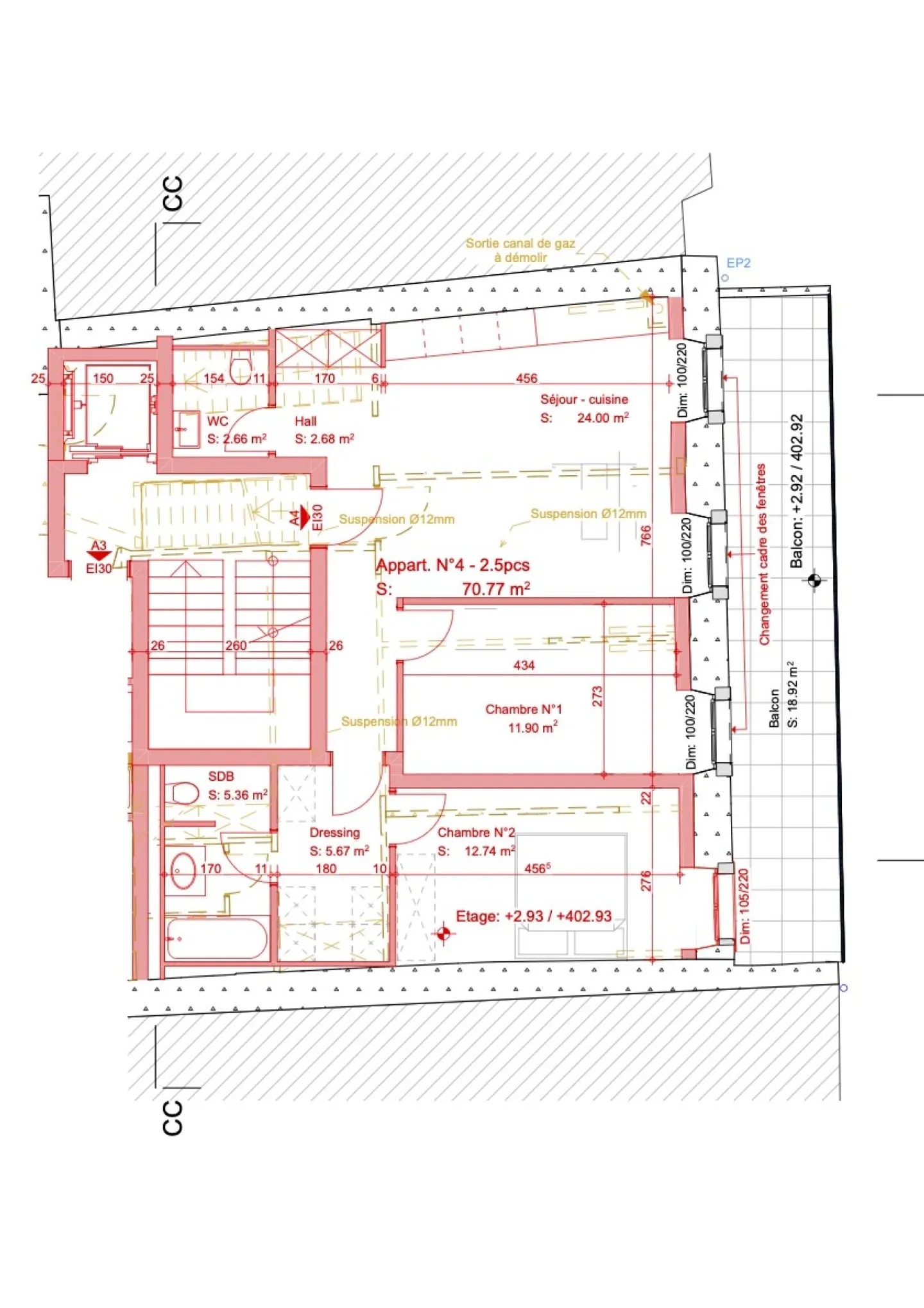
1° piano:
Appartamento 3.5 locali di 82m2 netti e 92m2 ponderati - lotto 4:
Ingresso con guardaroba
Soggiorno / sala da pranzo con cucina aperta completamente attrezzata. Accesso a un balcone di 19m2
2 camere da letto, una con cabina ...
Dettagli immobile
- Disponibile dal
- Su accordo
- Stanze
- 3.5
- Bagni
- 1
- Anno di ristrutturazione
- 2025
- Superficie abitabile
- 82 m²
- Piano
- 1°



