Appartamento in vendita - Route De Bagnes, 1941 Vollèges
Perché amerai questa proprietà
Spazio giardino privato
Design cucina aperta
Finiture personalizzabili
Organizza una visita
Prenota una visita con Nicolas oggi!
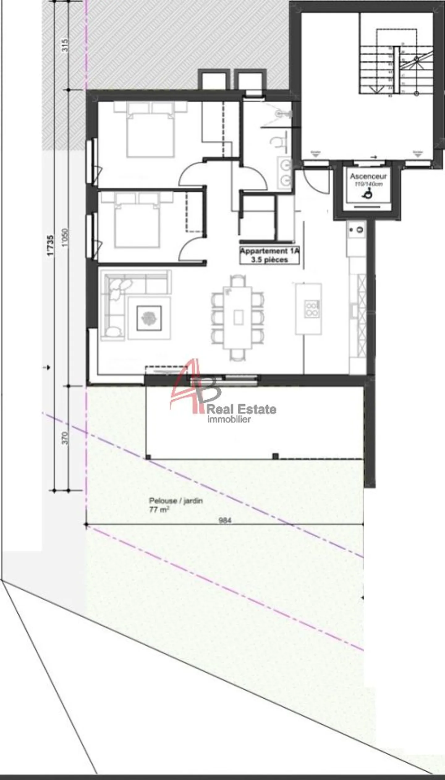
VAL DE BAGNES (Cries) Nuovo appartamento 3.5 locali con giardino
Nuovo appartamento 3.5 locali con giardino
Nella residenza VIVALDI a Cries (Val de Bagnes), questo appartamento di 3.5 locali offre
una superficie di vendita di 103.40 m² e un giardino privato di 76 m².
Distribuzione:
Soggiorno
con cucina aperta
2 camere
Bagno
Terrazza
di ca. 20 m²
Particolarità:
Progetto in corso, scelta delle finiture a discrezione dell'acquirente:
Cucina
Bagno
Rivestimenti
Vantaggi:
Vista libera
Ambiente tranquillo
Nuovo di zecca
CHF 798'000.-
Con 2 posti auto: CHF 848'000.-
Documento senza val...
Dettagli immobile
- Disponibile dal
- Su accordo
- Stanze
- 3.5
- Bagni
- 1
- Superficie abitabile
- 103 m²
- Superficie utilizzabile
- 103 m²




