Appartamento in vendita - Rösslistrasse, 6221 Rickenbach LU
Perché amerai questa proprietà
Design senza barriere
Balconi attraenti
Spazi verdi condivisi
Organizza una visita
Prenota una visita con Schmid oggi!
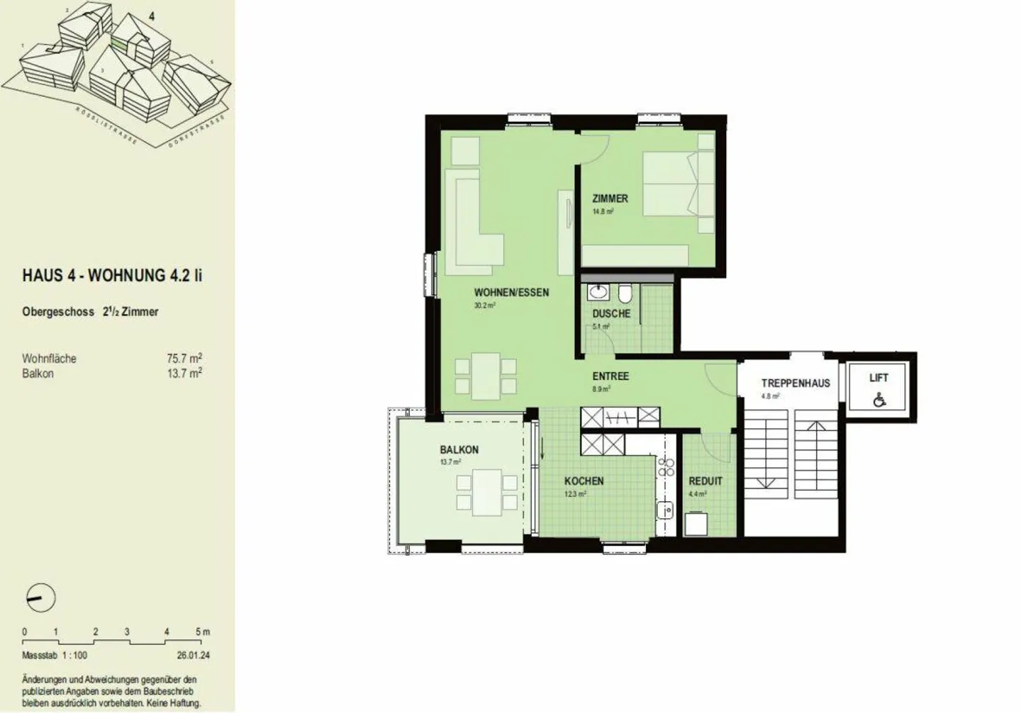
Vivere confortevole con vista
Qui puoi vivere
Rickenbach, una popolare comunità residenziale su un plateau soleggiato circondato da un paesaggio incantevole e caratterizzato da belle case con grandi giardini. Il alto campanile della chiesa, che segna il centro del villaggio, è visibile da lontano. L'infrastruttura comprende piccoli negozi che offrono tutto per le necessità quotidiane, accesso ai mezzi pubblici e strutture educative dalla scuola materna alla scuola secondaria.
In auto, puoi raggiungere Sursee con la stazione fe...
Dettagli immobile
- Disponibile dal
- Su accordo
- Stanze
- 2.5
- Anno di costruzione
- 2026
- Superficie abitabile
- 76 m²
- Piano
- 1°



