Appartamento in vendita - Rietweg, 8477 Oberstammheim
Perché amerai questa proprietà
Balconi con giardino d'inverno
Tinyhouse in legno sostenibili
Atmosfera di villaggio affascinante
Organizza una visita
Prenota una visita con Erich oggi!
Condomini «Struppler»
Vivere rilassati nella regione vinicola di Zurigo
Immozionale Kreuzlingen | 20-22 febbraio | Venite a trovarci! immozionale.ch
struppler.haeberlinag.ch
Visite libere:
Mercoledì, 27.05.26, 16:00 - 17:30
Mercoledì, 03.06.26, 16:00 - 17:30
Mercoledì, 10.06.26, 16:00 - 17:30
Mercoledì, 17.06.26, 16:00 - 17:30
Il nostro consulente di vendita Erich Keller è sul posto nel container di cantiere e sarà lieto di assistervi per una visita non vincolante e per rispondere a qualsiasi domanda.
Il nuovo complesso r...
Dettagli immobile
- Disponibile dal
- Su accordo
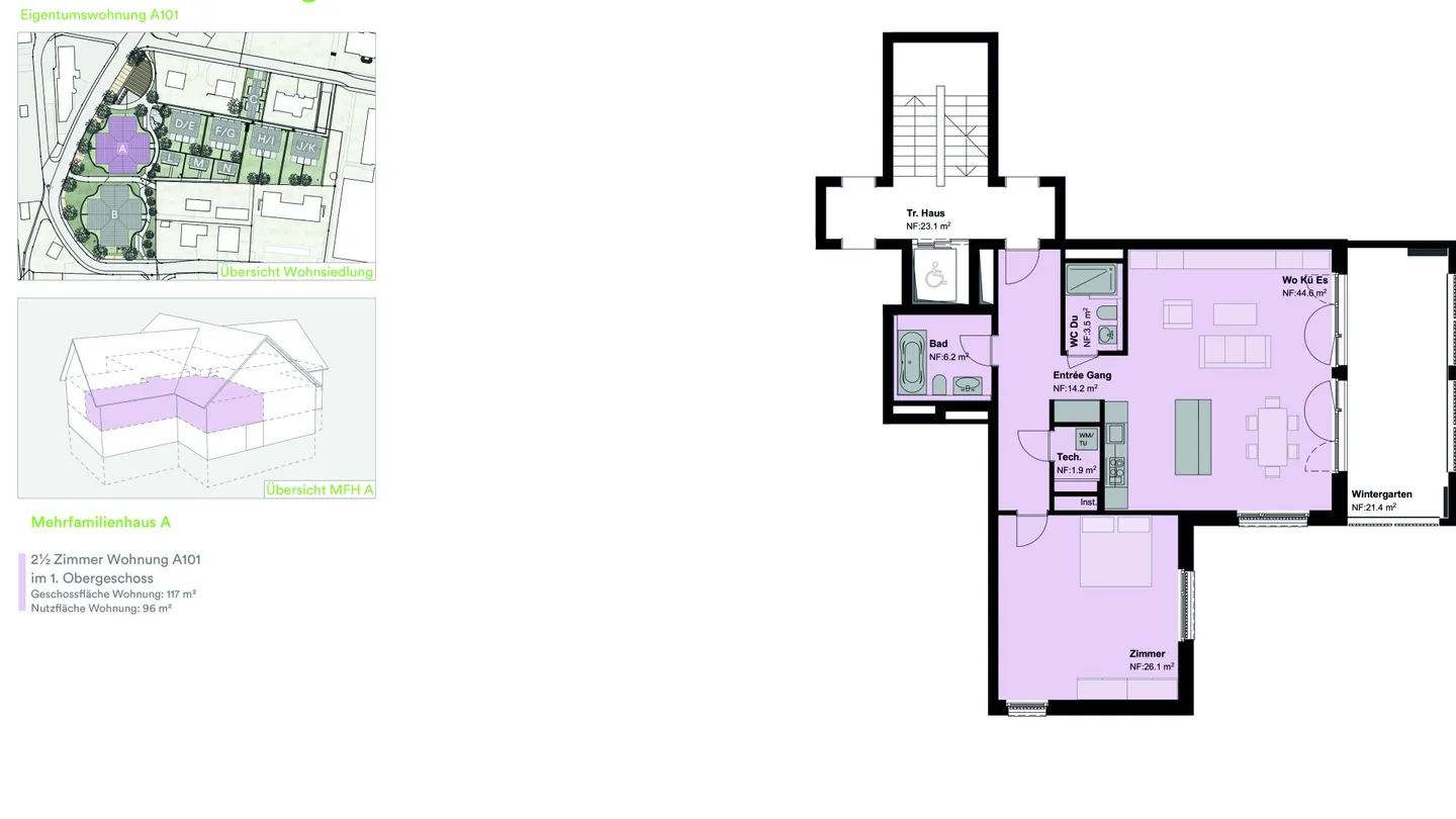
- Stanze
- 2.5
- Anno di costruzione
- 2025
- Superficie abitabile
- 96 m²
- Superficie utilizzabile
- 96 m²



