Appartamento in vendita - Place Du Bourg-De-Four, 1204 Genève
Perché amerai questa proprietà
Posizione centrale eccezionale
Ampia zona giorno
Pavimento in parquet storico
Organizza una visita
Prenota una visita con Charles-Henry oggi!
Eleganza e fascino nel cuore della città vecchia
Eleganza e fascino nel cuore della città vecchia
Posizione eccezionale nel cuore della città vecchia, a pochi passi da Place Bourg-de-Four
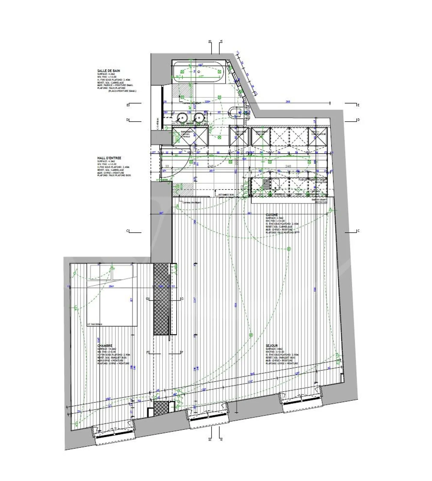
Appartamento di 79 m² al 1° piano con ascensore
Ampio soggiorno di 40 m², vecchio pavimento in parquet e cucina aperta
Camera da letto luminosa di 15 m²,
Bagno con vasca e doppio lavabo
Luminoso sottotetto
Vicino al Parco dei Bastioni, all'università e al quartiere bancario o alla Rive
Parcheggio Saint-Antoine a soli due minuti a piedi, abbonamenti residenzia...
Dettagli immobile
- Disponibile dal
- Su accordo
- Stanze
- 3
- Superficie abitabile
- 79 m²



