Duplex in vendita - Lättenstrasse, 8142 Uitikon Waldegg
Perché amerai questa proprietà
Vista montagna non ostacolata
Giardino privato di 163m2
Pergola in metallo di 30m2
Organizza una visita
Prenota una visita con Darko oggi!
Vivere all'avanguardia in una posizione soleggiata e tranquilla
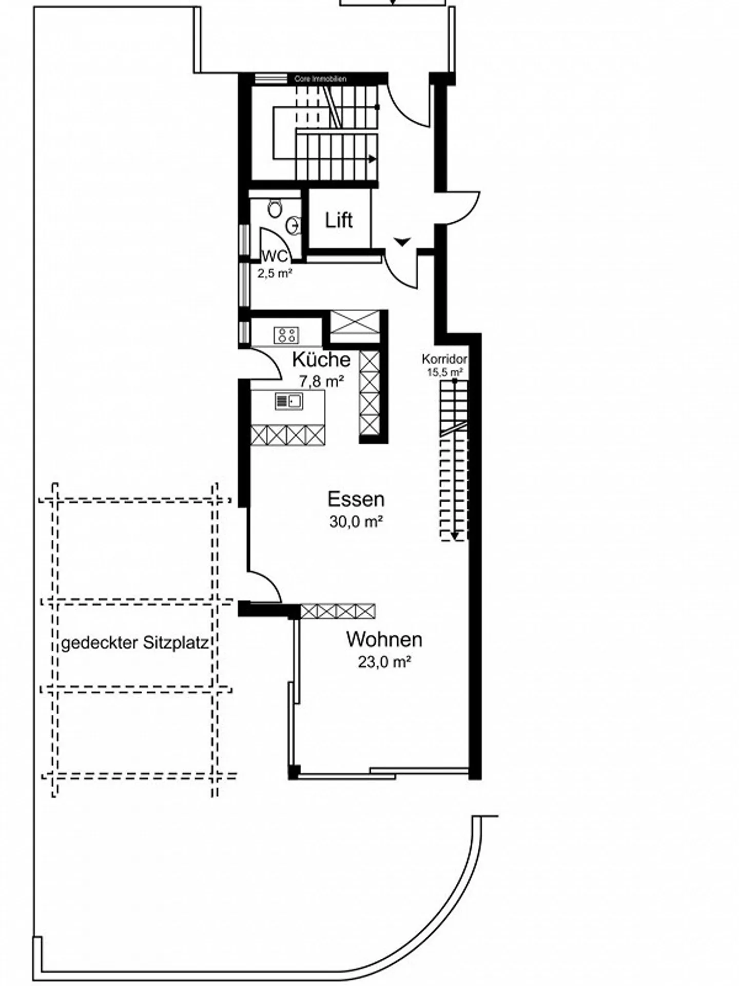
Scopri questo spazioso giardino-maisonette nella ricercata Lättenstrasse – con molta privacy, ottimale orientamento sud-ovest e assoluta tranquillità in una strada senza uscita. L'appartamento dell'architetto colpisce per il comfort abitativo moderno e un interno di alta qualità.
* Vista libera fino alle montagne
* 163m2 di giardino privato, completamente pavimentato e ghiaioso
* Pergola in metallo di 30m2 con tetto elettrico
* 16m2 di cantina
* Ascensore dal garage fino alla porta dell'appartamento
*...
Dettagli immobile
- Disponibile dal
- Su accordo
- Stanze
- 3.5
- Anno di costruzione
- 2009
- Anno di ristrutturazione
- 2023
- Superficie abitabile
- 146 m²
- Superficie utilizzabile
- 162 m²
- Piano
- 1°
- Piani dell'edificio
- 2



