Appartamento in vendita - Höfjiweg, 7250 Klosters
Organizza una visita
Prenota una visita oggi!
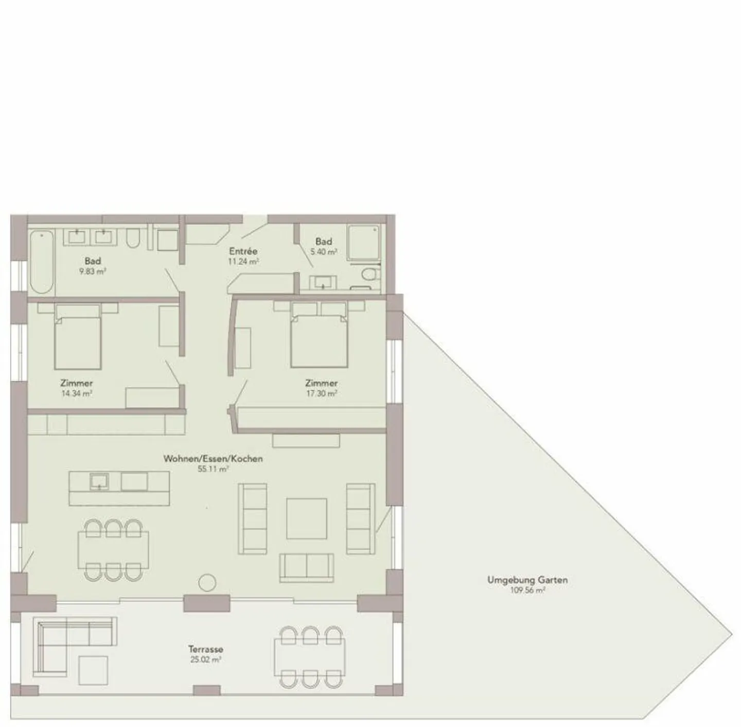
3.5-Zimmer-Wohnung EG ERSTWOHNSITZ
Die 3.5-Zimmer-Erdgeschosswohnung als Erstwohnsitz überzeugt mit einem offenen Grundriss, viel Licht und einem besonders attraktiven Aussenbereich.
Der Wohn-/Essbereich mit Küche öffnet sich direkt zur rund 25 m² grossen Terrasse und in den privaten Garten mit über 100 m² Fläche - ein wunderbarer Ort für sonnige Stunden, entspanntes Essen im Freien und ein Wohnen mit viel Grün direkt vor der Tür.
Zwei gut geschnittene Zimmer, zwei stilvoll gestaltete Nasszellen und ein grosszügiges Entrée schaffen...
Dettagli immobile
- Disponibile dal
- Su accordo
- Stanze
- 3.5
- Bagni
- 2
- Anno di costruzione
- 2026
- Piano
- Terra



