Appartamento in vendita - Grundstrasse, 9445 Rebstein
Perché amerai questa proprietà
Loggia spaziosa di 26.5m2
Cucina aperta con granito
Piani personalizzabili
Organizza una visita
Prenota una visita oggi!
Sviluppo "grund", rebstein - condomini di prima classe
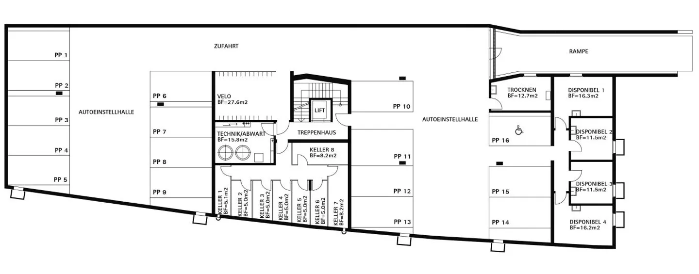
Nell'area ben soleggiata e tranquilla <> a Rebstein, verrà costruito un edificio residenziale multifamiliare con otto condomini moderni. L'inizio dei lavori è previsto per la primavera del 2025 con prima occupazione nell'estate del 2026.
L'appartamento attico di 5.5 stanze impressiona per le seguenti caratteristiche:
- 139.3m2 di superficie calpestabile
- 26.5m2 di loggia coperta
- spazi di stoccaggio aggiuntivi di 7.8m2
- stanze spaziose e ben illuminate
- cucina abitabile aperta con piani di l...
Dettagli immobile
- Disponibile dal
- Su accordo
- Stanze
- 5.5
- Anno di costruzione
- 2025
- Superficie abitabile
- 139.3 m²
- Piani dell'edificio
- 3



