Appartamento in vendita - Grundstrasse, 9445 Rebstein
Perché amerai questa proprietà
Loggia coperta spaziosa
Cucina aperta in granito
Piani personalizzabili
Organizza una visita
Prenota una visita oggi!
Sviluppo "grund", rebstein - condomini di prima classe
Nell'area ben soleggiata e tranquilla <> a Rebstein, è in costruzione un edificio residenziale multifamiliare con otto condomini moderni. L'inizio dei lavori è previsto per la primavera 2025 con prima occupazione nell'estate 2026.
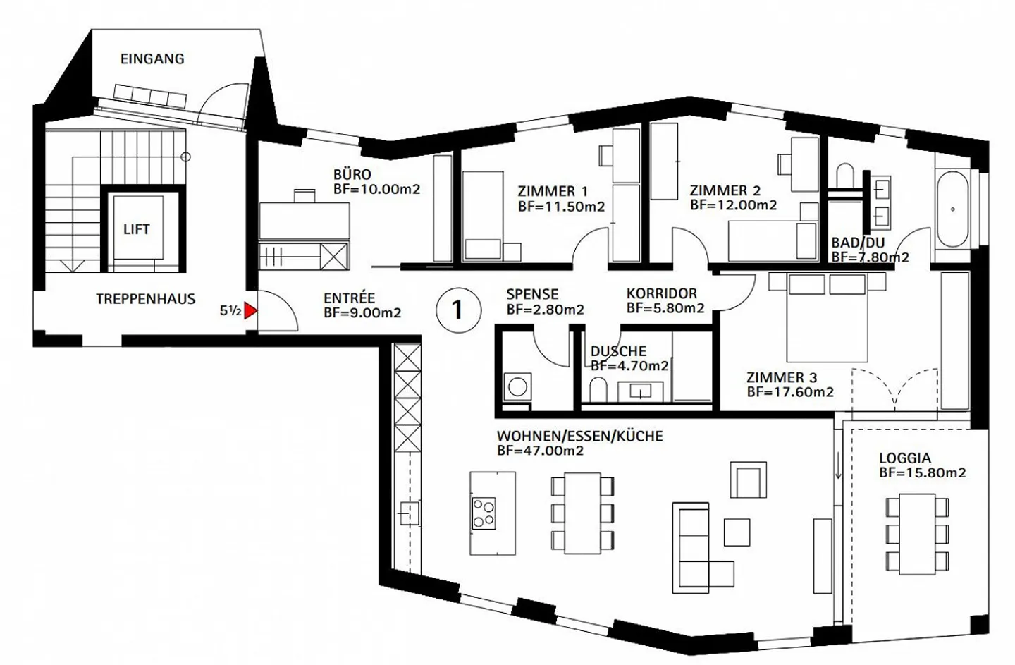
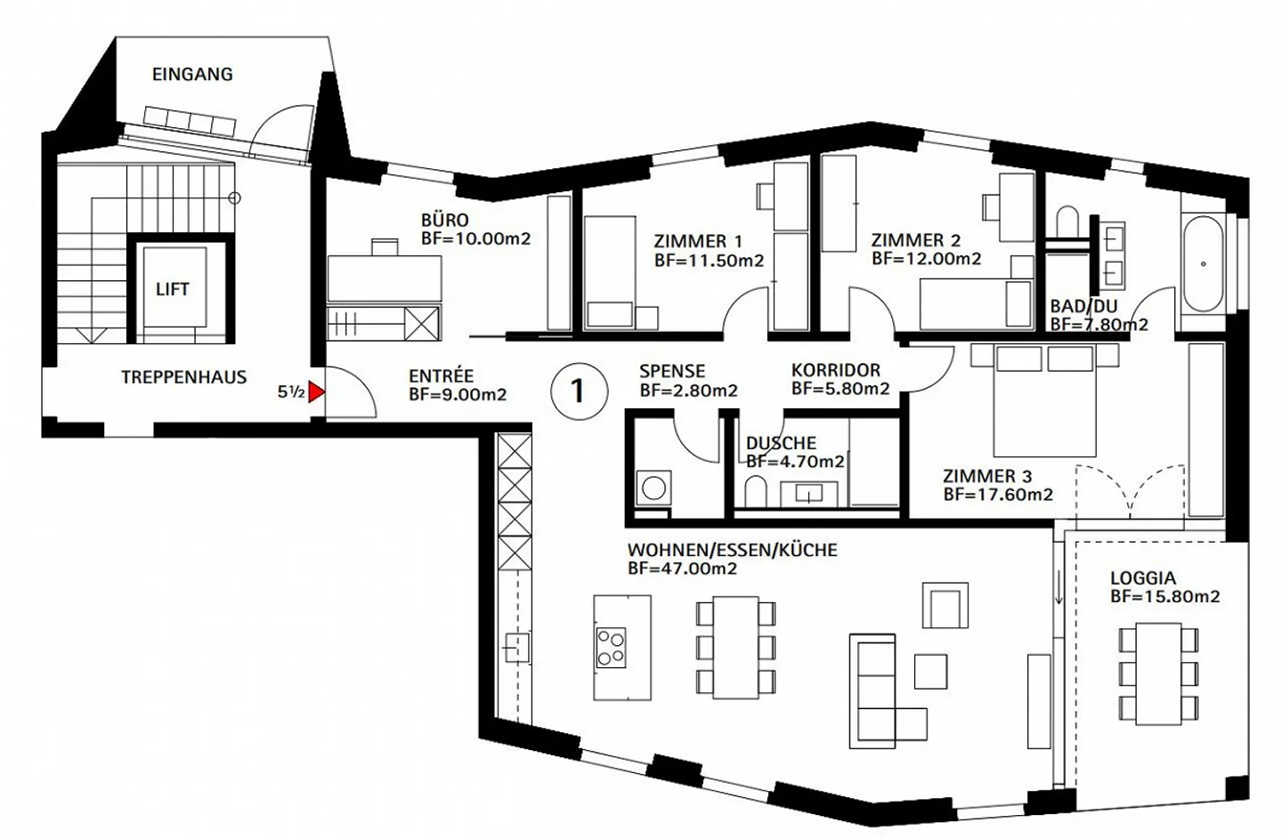
L'appartamento di 5.5 stanze impressiona per le seguenti caratteristiche:
- 128.2m2 di superficie netta
- 15.8m2 di loggia coperta
- Ripostiglio di 2.8m2
- Stanze generose e ben illuminate
- Cucina abitabile aperta con piani di lavoro in granito, piano cottura a induzi...
Dettagli immobile
- Disponibile dal
- Su accordo
- Stanze
- 5.5
- Anno di costruzione
- 2025
- Superficie abitabile
- 128.2 m²
- Piano
- Terra
- Piani dell'edificio
- 3



