Appartamento in vendita - Grundstrasse, 9445 Rebstein
Perché amerai questa proprietà
Loggia coperta spaziosa
Cucina aperta in granito
Piani personalizzabili
Organizza una visita
Prenota una visita oggi!
Sviluppo "grund", rebstein - condominiums di prima classe
Objektbeschreibung
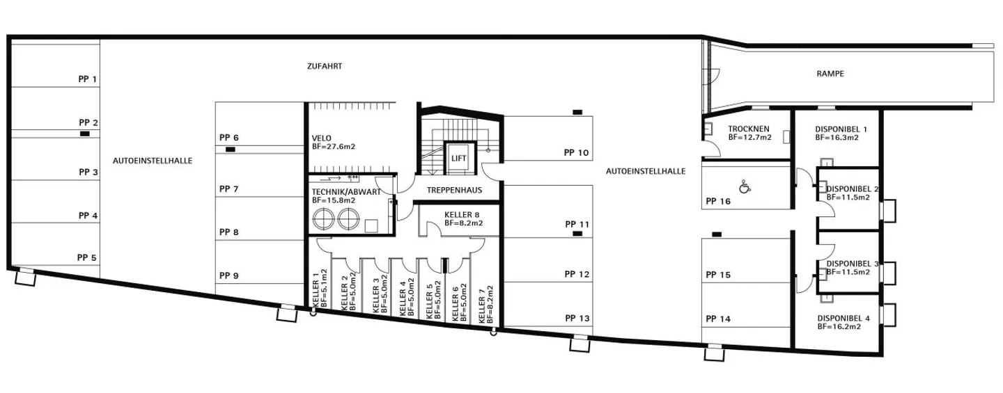
Auf dem gut besonnten und ruhigen Areal <> in Rebstein wird ein Mehrfamilienwohnhaus mit acht modernen Eigentumswohnungen erstellt. Der Baubeginn startet im Frühjahr 2025 mit Erstbezug im Sommer 2026.
Die 2.5 Zimmer Wohnung überzeugt mit folgenden Merkmalen:
- 54.4m2 Geschossfläche
- 7.0m2 gedeckte Loggia
- grosszügige und gut belichtete Räume
- offene Wohnküche mit Granitarbeitsflächen, Induktionskochfeld mit integriertem Dunstabzug, Backofen mit Steamer, Geschirrspüler, s...
Dettagli immobile
- Disponibile dal
- Su accordo
- Stanze
- 2.5
- Anno di costruzione
- 2025
- Superficie abitabile
- 54.4 m²
- Piano
- 1°
- Piani dell'edificio
- 3



