1 / 15

Appartamento in vendita - Gewerbestrasse, 5012 Schönenwerd

2.5 stanze • 942 m² Plot • Piano terra
CHF 350’000
CHF 372 m²

Perché amerai questa proprietà

Posizione centrale con fermata bus

Lavanderia privata nell'appartamento

Area esterna coperta

Organizza una visita

Prenota una visita oggi!

Brivio Immobilien GmbH
Questa descrizione è stata tradotta automaticamente da Tedesco.

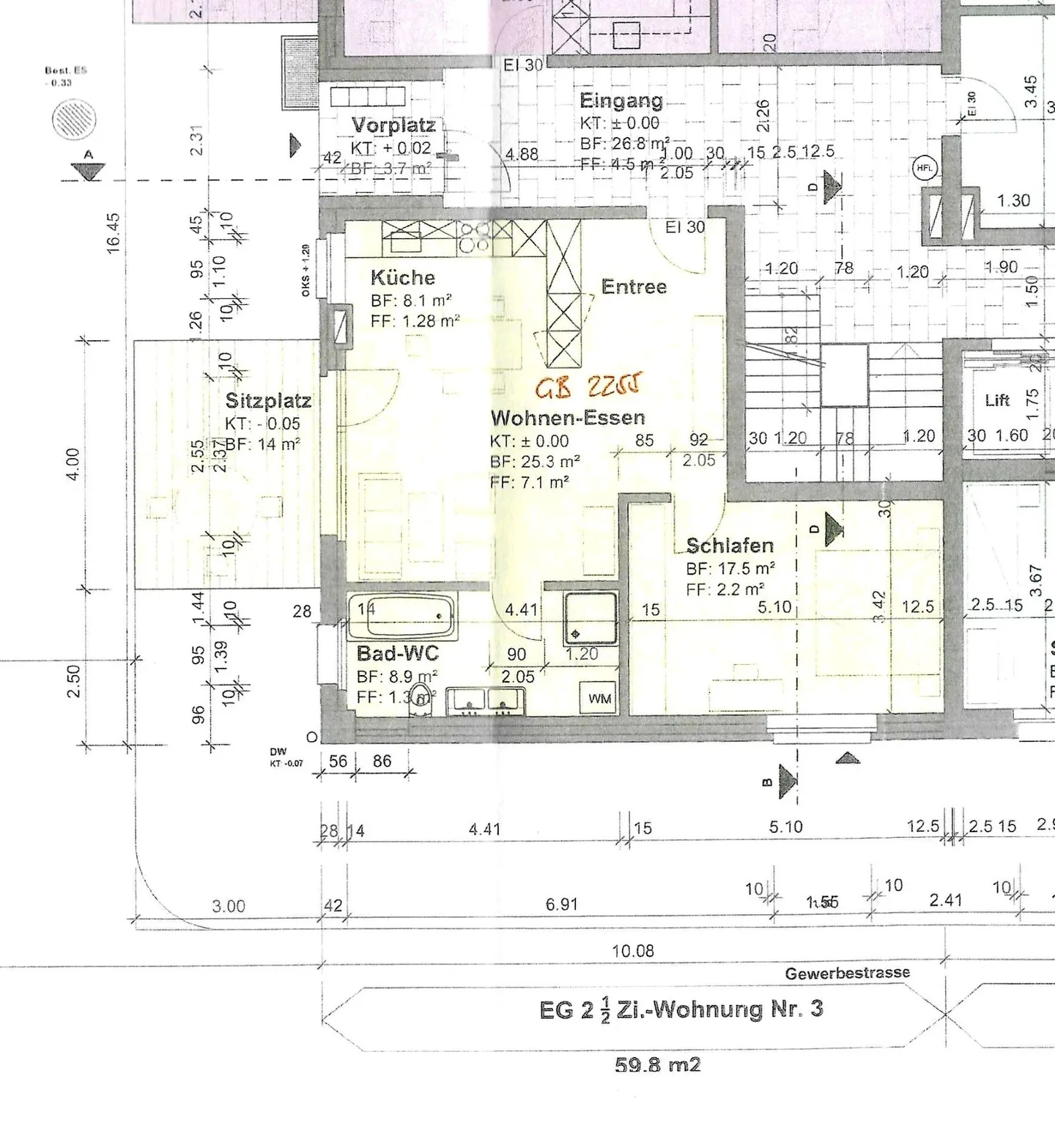
Accogliente appartamento di 2,5 stanze al piano terra con area salotto coperta

Questo affascinante appartamento di 2,5 stanze colpisce per la sua posizione centrale a Schönenwerd e l'alto comfort abitativo.

Entrando nell'appartamento, sarete accolti da un pratico ingresso con armadi a muro che offrono molto spazio di archiviazione. La spaziosa cucina è modernamente progettata e invita a cucinare e sostare. Il bagno dispone sia di una doccia che di una vasca da bagno ed è inoltre dotato di una propria torre di lavaggio - perfetto per il comfort quotidiano.

L'area salotto cope...

Dettagli immobile

Disponibile dal
Su accordo
Stanze
2.5
Bagni
1
Anno di costruzione
2010
Superficie terreno
942
Piano
Terra

Caratteristiche

Parcheggio
Ascensore
Lavatrice
Asciugatrice
Accessibile ai disabili

Agenzia

Brivio Immobilien GmbH
Indirizzo:Suhrgasse, 5037, Muhen
Ref: 20251020.01
Online da
23/10/2025
7 ore fa

Località

Gewerbestrasse, 5012 Schönenwerd

Fonti