Appartamento in vendita - Gassenacker, 8545 Rickenbach Sulz
Perché amerai questa proprietà
Vita idilliaca a Rickenbach
Architettura magistrale
Balconi spaziosi per rilassarsi
Organizza una visita
Prenota una visita oggi!
Una vita piena di possibilità: appartamenti di charme in posizione estremamente tranquilla e soleggiata!
Abbiamo accompagnato oltre 1000 persone nel realizzare il loro sogno abitativo e garantiamo un risveglio sereno.
Sperimentate la qualità abitativa con questi punti salienti:
* Abitare in un ambiente idilliaco nella popolare Rickenbach-Sulz, posizione straordinariamente tranquilla e soleggiata.
* Architettura magistrale con materiali pregiati
* Ampie superfici abitative e spaziosi balconi
* Docce a filo pavimento per il massimo comfort
* Possibilità di adattare la pianta secondo i vostri desideri ed es...
Dettagli immobile
- Disponibile dal
- Su accordo
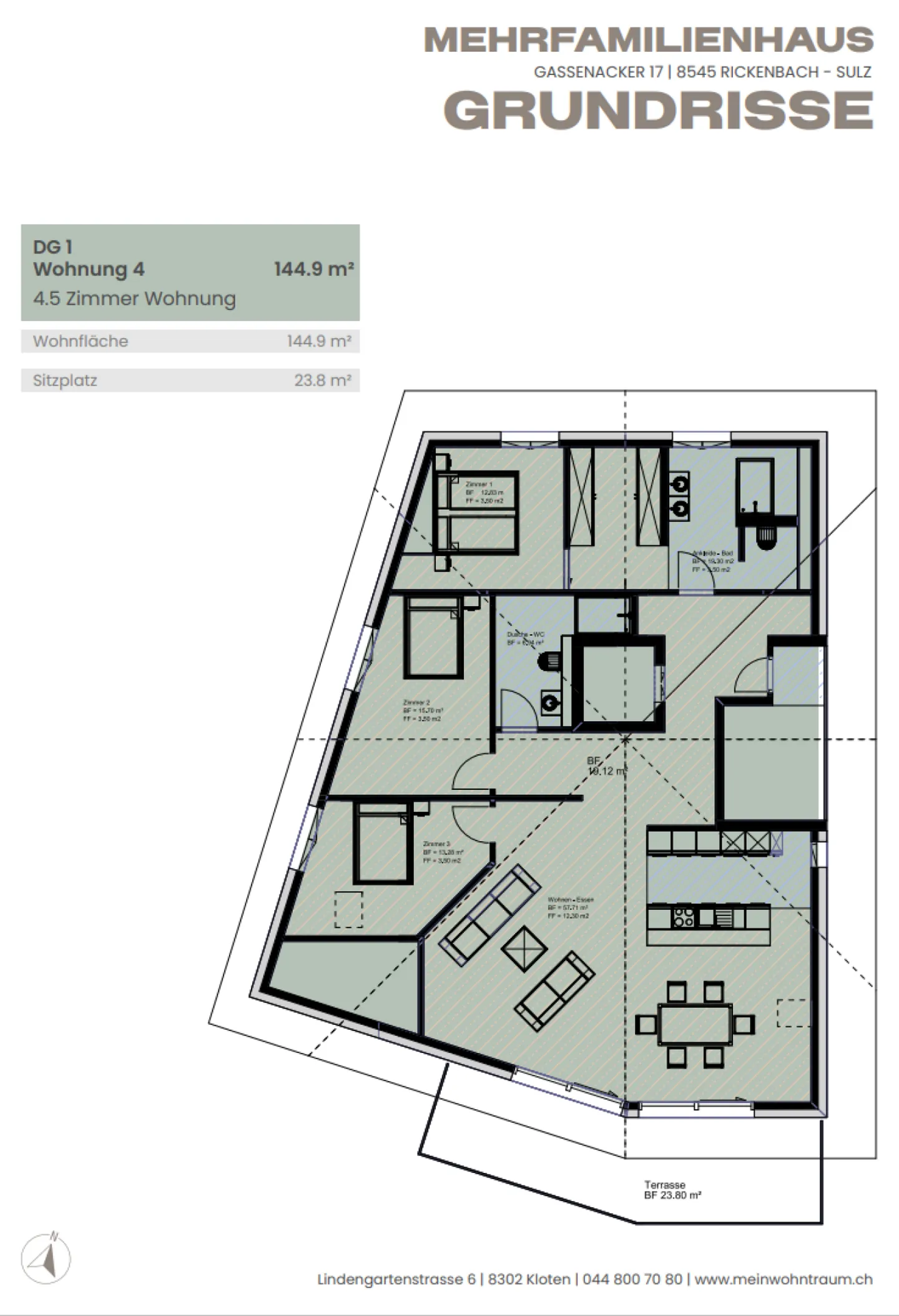
- Stanze
- 4.5
- Bagni
- 2
- Anno di costruzione
- 2026
- Superficie abitabile
- 145 m²
- Piano
- 2°




