Appartamento in vendita - 9473 Gams
Perché amerai questa proprietà
Vista mozzafiato sulla valle
Layout flessibile delle stanze
Soluzioni energetiche sostenibili
Organizza una visita
Prenota una visita con Schöb oggi!
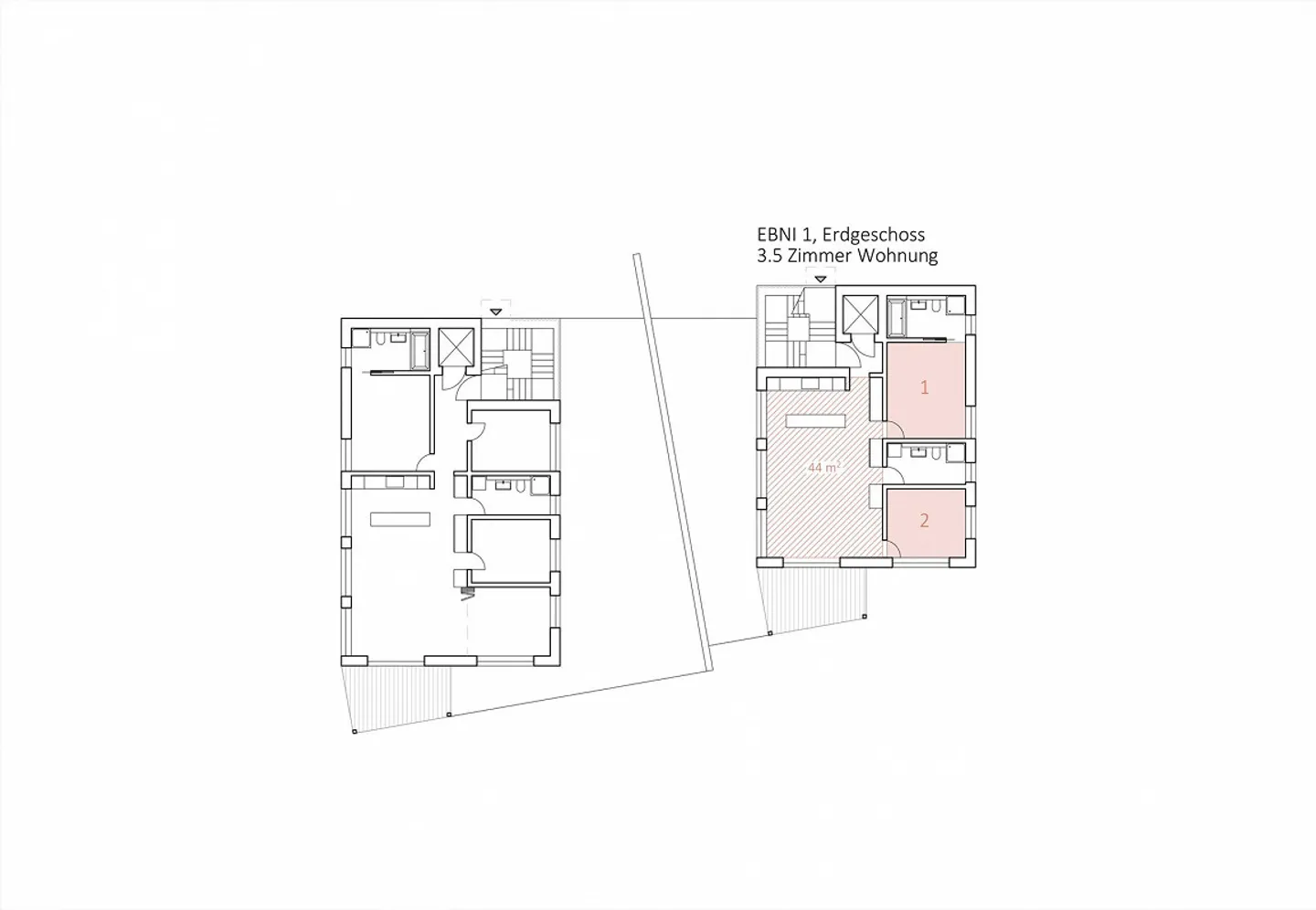
Appartamento 3.5 stanze
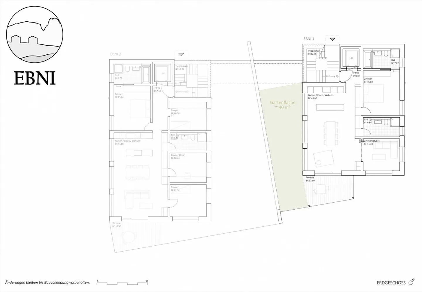
Comfort e panorami – appartamenti in condominio a Ebni, Gams
POSIZIONE
A Ebni, un plateau elevato tra Gams e Wildhaus, stanno sorgendo due edifici discreti ma eleganti, ciascuno con due appartamenti in condominio. Questi sono collegati da un piano interrato comune integrato nella pendenza.
La posizione soleggiata esposta a sud è pienamente sfruttata grazie all'ottimale orientamento degli spazi abitativi: stanze illuminate creano un'atmosfera accogliente e offrono una vista libera sulla valle del Re...
Dettagli immobile
- Disponibile dal
- Su accordo
- Stanze
- 3.5
- Superficie abitabile
- 92 m²
- Piano
- Terra



