Appartamento a gradini in vendita - Buacherstrasse 9, 5452 Oberrohrdorf
Perché amerai questa proprietà
Vista mozzafiato sulle montagne
Materiali di alta qualità
Ampio soggiorno luminoso
Organizza una visita
Prenota una visita con Cindy oggi!
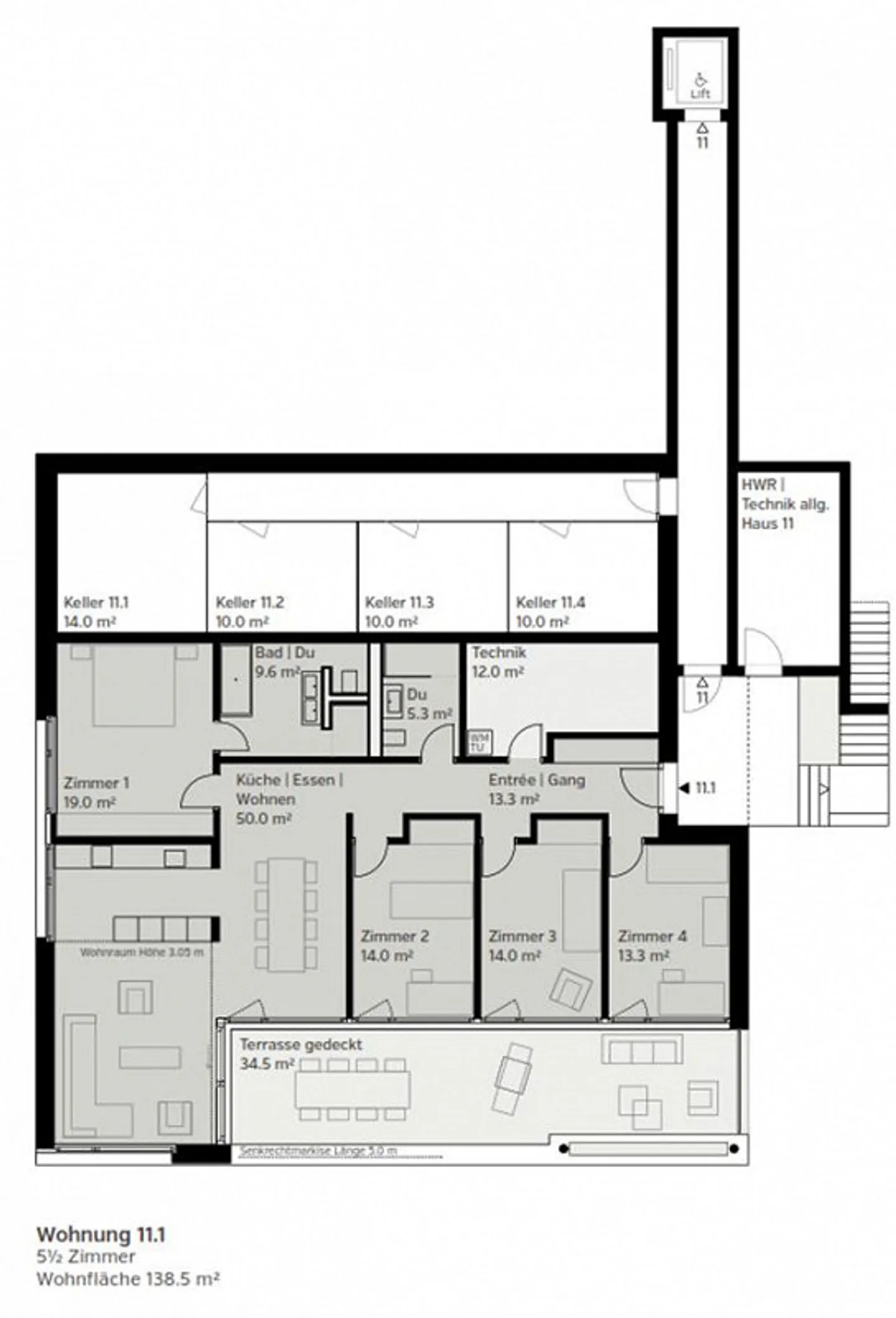
Appartamento in terrazza di 5,5 stanze (livello 7.1)
Buacher Est - Progetto di nuova costruzione in una posizione da sogno
Lo sviluppo Buacher si trova in una posizione tranquilla e bella in collina, al margine sud-occidentale di Oberrohrdorf, e colpisce per una vista impressionante e libera sulla pianura verde della Reusse fino alle Alpi.
Su due lotti - Buacher Ovest e Est - stanno sorgendo quattro case a terrazza con un totale di 18 ampi e soleggiati appartamenti a terrazza di 4½ e 5½ stanze. Le due case (n. 7 e 5) con cinque appartamenti a terraz...
Dettagli immobile
- Disponibile dal
- Su accordo
- Stanze
- 5.5
- Anno di costruzione
- 2025



