Appartamento in vendita - 8712 Stäfa
Perché amerai questa proprietà
Design energetico efficiente
Ampia terrazza di 44 m2
Area giardino privata
Organizza una visita
Prenota una visita con Claude oggi!
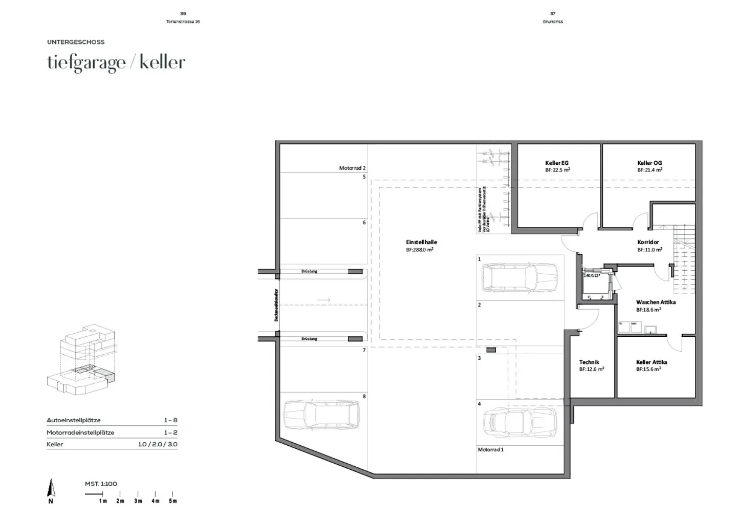
Ampio appartamento giardino di 4,5 locali con 176 m2 di superficie abitabile in una posizione molto tranquilla e a contatto con la natura
Benvenuti in Torlenstrasse 16 a Stäfa-Uerikon
In una posizione tranquilla e a contatto con la natura, non lontano dalle pittoresche rive del lago di Zurigo, si sta creando uno spazio abitativo generoso con un'alta qualità della vita. Con solo tre condomini nell'edificio, qui godrete di massima privacy ed esclusività.
Punti salienti dell'appartamento giardino 1.0:
* spazio abitativo energeticamente efficiente e spazioso
* 176,3 m2 di superficie abitabile
* quartiere residenziale molto tranquillo
* gran...
Dettagli immobile
- Disponibile dal
- Su accordo
- Stanze
- 4.5
- Anno di costruzione
- 2027
- Superficie abitabile
- 176 m²
- Piano
- Terra




