Appartamento in vendita - 8712 Stäfa
Perché amerai questa proprietà
Vista lago e montagne
Ampio soggiorno aperto
Terrazza di 22 m2
Organizza una visita
Prenota una visita con Claude oggi!
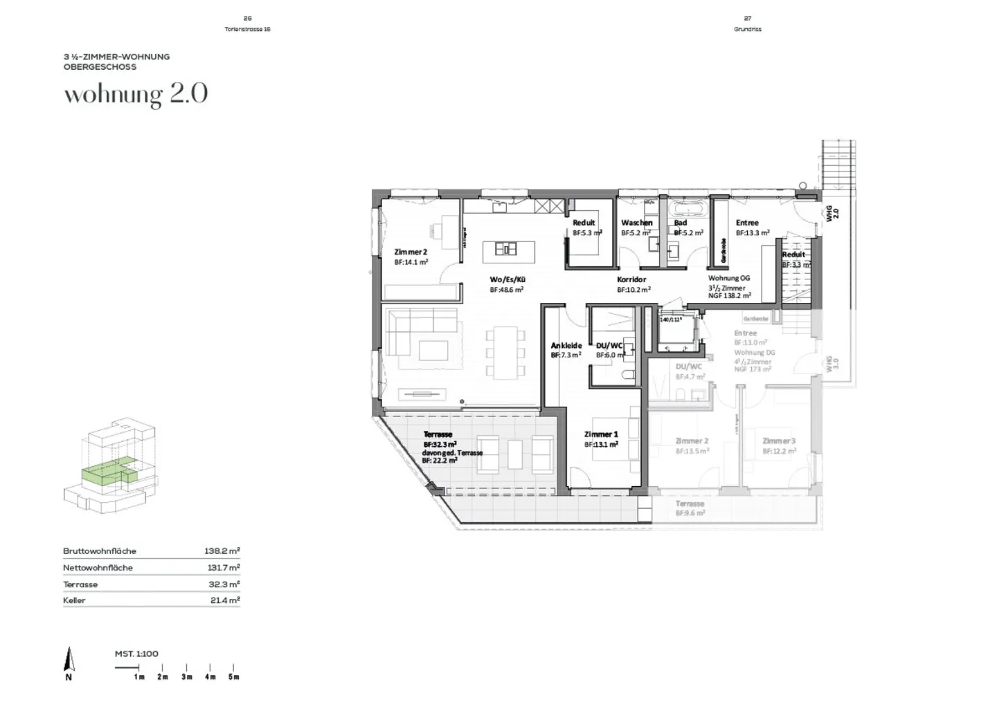
Ampio appartamento di 3,5 stanze al piano superiore, 138m2 di superficie abitabile, vista lago e montagna, in una posizione a contatto con la natura
Benvenuti in Torlenstrasse 16 a Stäfa-Uerikon
In una posizione tranquilla e a contatto con la natura, non lontano dalle pittoresche rive del lago di Zurigo, si sta creando uno spazio abitativo generoso con un'alta qualità della vita. Con solo tre condomini nell'edificio, qui godrete di massima privacy ed esclusività.
Punti salienti dell'appartamento al piano superiore 2.0:
* Vista parziale sul lago e sulle montagne
* Spazio abitativo energeticamente efficiente e spazioso
* 138,2 m2 di superficie abit...
Dettagli immobile
- Disponibile dal
- Su accordo
- Stanze
- 3.5
- Anno di costruzione
- 2027
- Superficie abitabile
- 138 m²
- Piano
- 1°




