Appartamento in vendita - 8625 Gossau ZH
Perché amerai questa proprietà
Fascino storico e design moderno
Spazi esterni privati per tutti
Vita sostenibile con energia solare
Organizza una visita
Prenota una visita con Gino oggi!
Come piccola sentinella della comunità di Gossau nell'Oberland zurichese, Ottikon si trova tranquilla e immersa nella natura. Qui si gode della vita di campagna con collegamenti alla città. L'autobus impiega dieci minuti per arrivare a Wetzikon, sull'autostrada Forch, il viaggio in auto privata fino a Uster dura solo dodici minuti, fino a Zurigo circa venti minuti. Nel villaggio ben curato e sviluppato, si sta creando un ensemble unico che combina spazio per stili di vita individuali con un vici...
Dettagli immobile
- Disponibile dal
- Su accordo
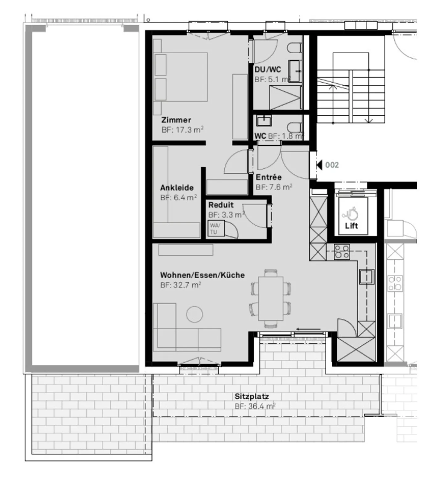
- Stanze
- 2.5
- Anno di costruzione
- 2025
- Superficie abitabile
- 74 m²
- Superficie giardino
- 30 m²
- Superficie terrazza
- 36 m²
- Piani dell'edificio
- 3



