1 / 9

Attico in vendita - 8608 Bubikon

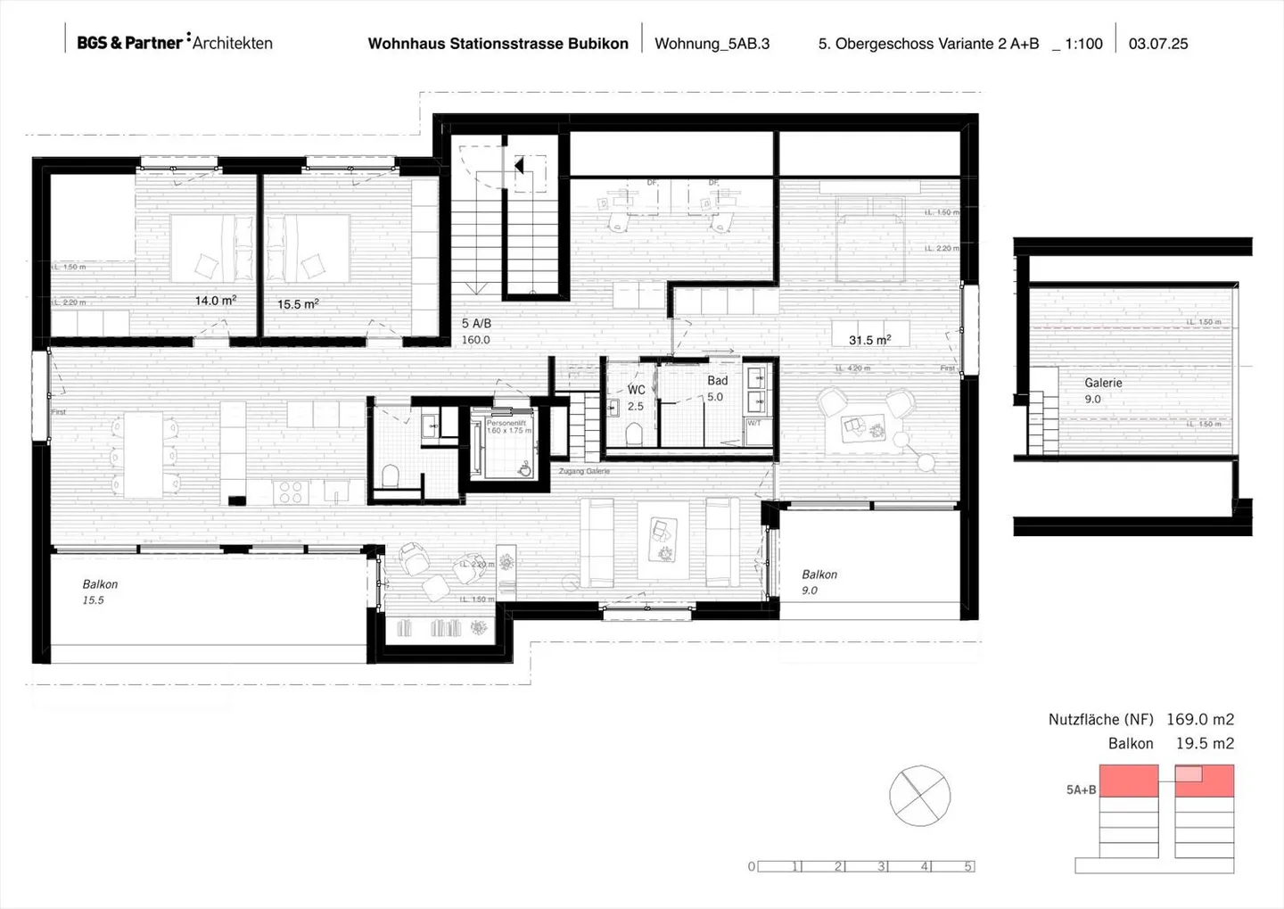
5.5 stanze • 170 m² • 5° piano
Prezzo su richiesta
-

Perché amerai questa proprietà

Terrazza con vista mozzafiato

Pompa di calore efficiente

Design moderno con accesso ascensore

Organizza una visita

Prenota una visita con Vanessa oggi!

Vanessa Harder
Properti AG
Questa descrizione è stata tradotta automaticamente da Tedesco.

Esclusivo appartamento attico di 4,5 o 5,5 stanze con vista mozzafiato a bubikon

Questa casa è stata sviluppata da un architetto di fama e non lascia nulla a desiderare.

Situata in una delle regioni più ambite del cantone di Zurigo, vi presentiamo questo unico appartamento attico di 4,5 stanze, che si distingue per la sua generosità e straordinarietà. Il soggiorno spazioso invita a rimanere, mentre la cucina aperta e nuova costituisce il cuore dello spazio abitativo. Con un totale di 3 camere da letto, 2 bagni, un pratico ripostiglio e una cantina, questa proprietà offre il r...

Dettagli immobile

Disponibile dal
Su accordo
Stanze
5.5
Anno di costruzione
2025
Superficie abitabile
170
Piano

Caratteristiche

Parcheggio
Ascensore
Accessibile ai disabili
Animali ammessi

Agenzia

Properti AG
Indirizzo:Flurstrasse 62, 8048, Zurich
Ref: a00Vj00000LQxJlIAL_03451
Online da
26/09/2025
25 giorni fa

Località

8608 Bubikon

Fonti