Appartamento in vendita - Talstrasse 7, 5703 Seon
Perché amerai questa proprietà
Design energetico efficiente
Ampi balconi soleggiati
Accesso diretto al garage
Organizza una visita
Prenota una visita con Fischer oggi!
Nuova costruzione SEON7, abitare sostenibile in una posizione centrale
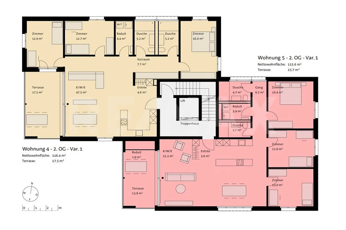
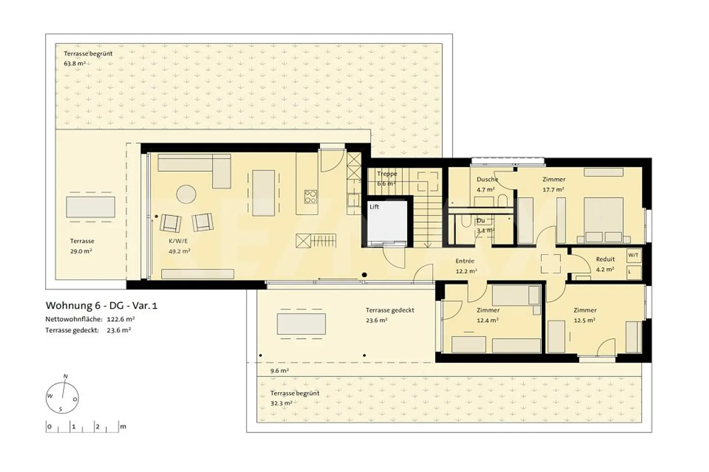
In una posizione attraente e centrale in Talstrasse 7 a Seon, a pochi minuti a piedi dalla stazione ferroviaria, sta sorgendo un moderno e sostenibile edificio plurifamiliare con un totale di 6 appartamenti di alta qualità con 4,5 stanze. La proprietà combina architettura contemporanea, tecnologia edilizia energeticamente efficiente e alto comfort abitativo con un'eccellente infrastruttura.
Gli appartamenti si caratterizzano per planimetrie spaziose e luminose e un'area open space per soggiorno,...
Dettagli immobile
- Disponibile dal
- Su accordo
- Stanze
- 4.5
- Anno di costruzione
- 2026
- Superficie abitabile
- 116 m²
- Piani dell'edificio
- 4



