Appartamento in vendita - 6993 Iseo
Perché amerai questa proprietà
Rifugio tranquillo nella natura
Accesso al giardino dal soggiorno
Vicino al centro di Lugano
Organizza una visita
Prenota una visita oggi!
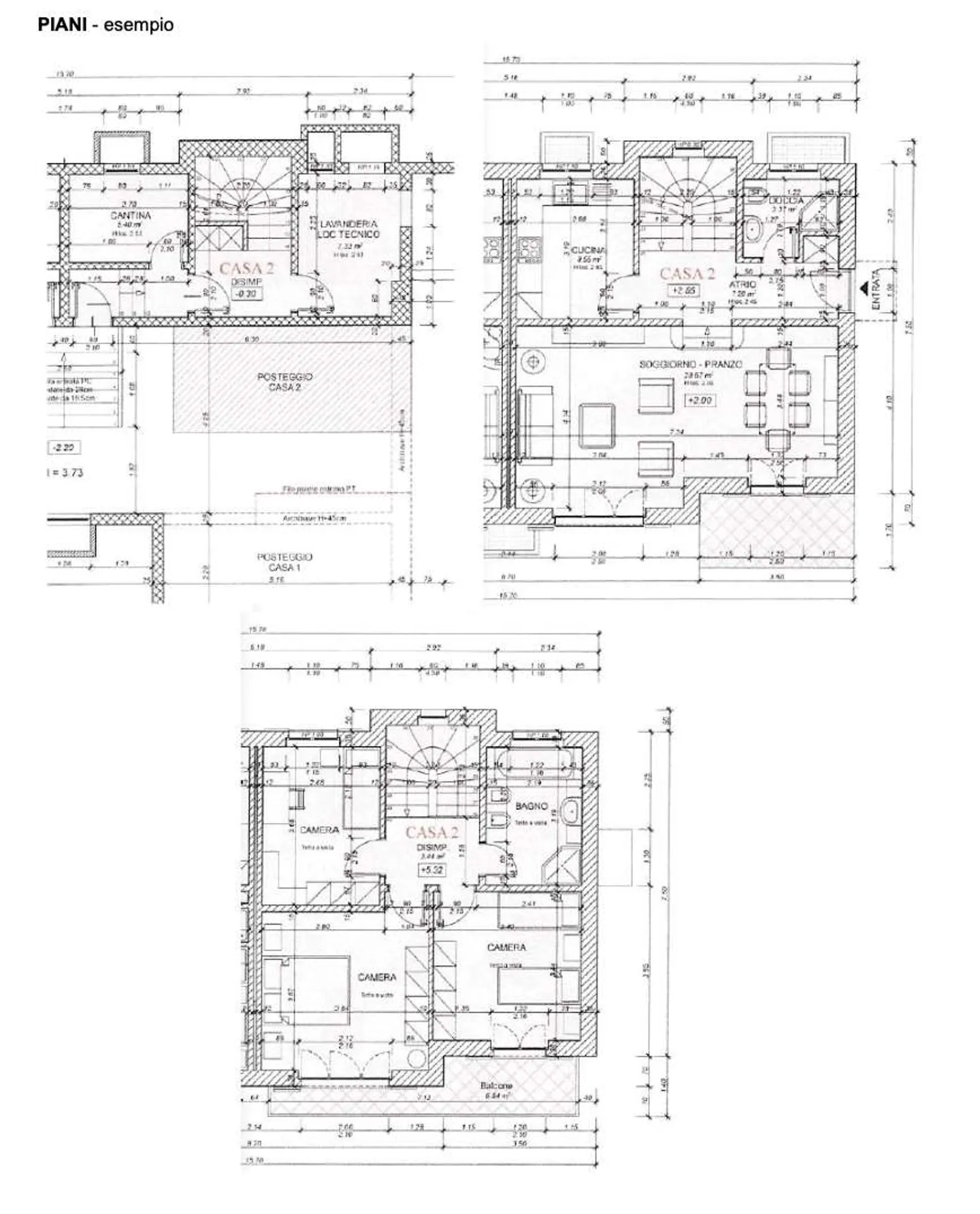
Parte di una casa bifamiliare in vendita, 4,5 stanze
Malcantone, nel cuore affascinante di Iseo, sta nascendo la residenza Campìa.
Essa è composta da due case bifamiliari e un piccolo edificio di appartamenti con quattro appartamenti.
Ideale come residenza principale per un nucleo familiare di quattro persone che amano la tranquillità e il contatto con la natura, a pochi chilometri dal centro città di Lugano, che dista meno di 15 km.
L'appartamento è distribuito su tre livelli.
Il piano interrato offre l'ingresso dal garage, il locale caldaia e un...
Dettagli immobile
- Disponibile dal
- Su accordo
- Stanze
- 4.5
- Anno di costruzione
- 2014
- Superficie abitabile
- 137 m²
- Superficie terreno
- 90 m²




