Attico in vendita - 6984 Pura
Perché amerai questa proprietà
Ampio soggiorno open space
Cucina moderna con elettrodomestici
Stupende viste panoramiche
Organizza una visita
Prenota una visita oggi!
Bellissimo attico di 3.5 loc ristrutturato con mezzanino - residenza primaria - schöne renovierte 2-s.zimmer-dachgeschosswohnung mit mezzazin
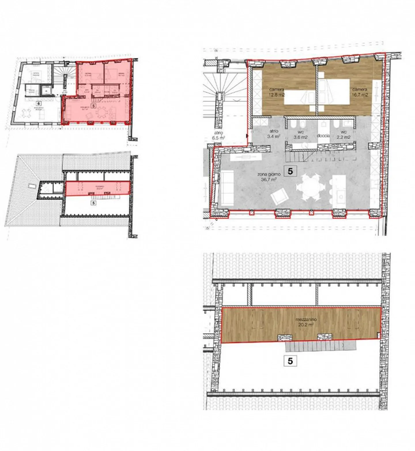
Nel paese di Pura, si trova questo confortevole appartamento di 96.3 m², situato al ultimo piano di un edificio completamente ristrutturato e progettato per unire stile e funzionalità. Residenza primariaL'appartamento dispone di una spaziosa e luminosa con 2 camere da letto, un bagno con moderna doccia, guest WC ed un ampio open living con mezzanino. La cucina a vista è dotata di moderni elettrodomestici. I pavimenti in legno in tutti i locali creano un ambiente caldo e accogliente. Grandi fines...
Dettagli immobile
- Disponibile dal
- Su accordo
- Stanze
- 3.5
- Superficie abitabile
- 96 m²
- Piano
- 3°



