Appartamento in vendita - 6963 Pregassona
Perché amerai questa proprietà
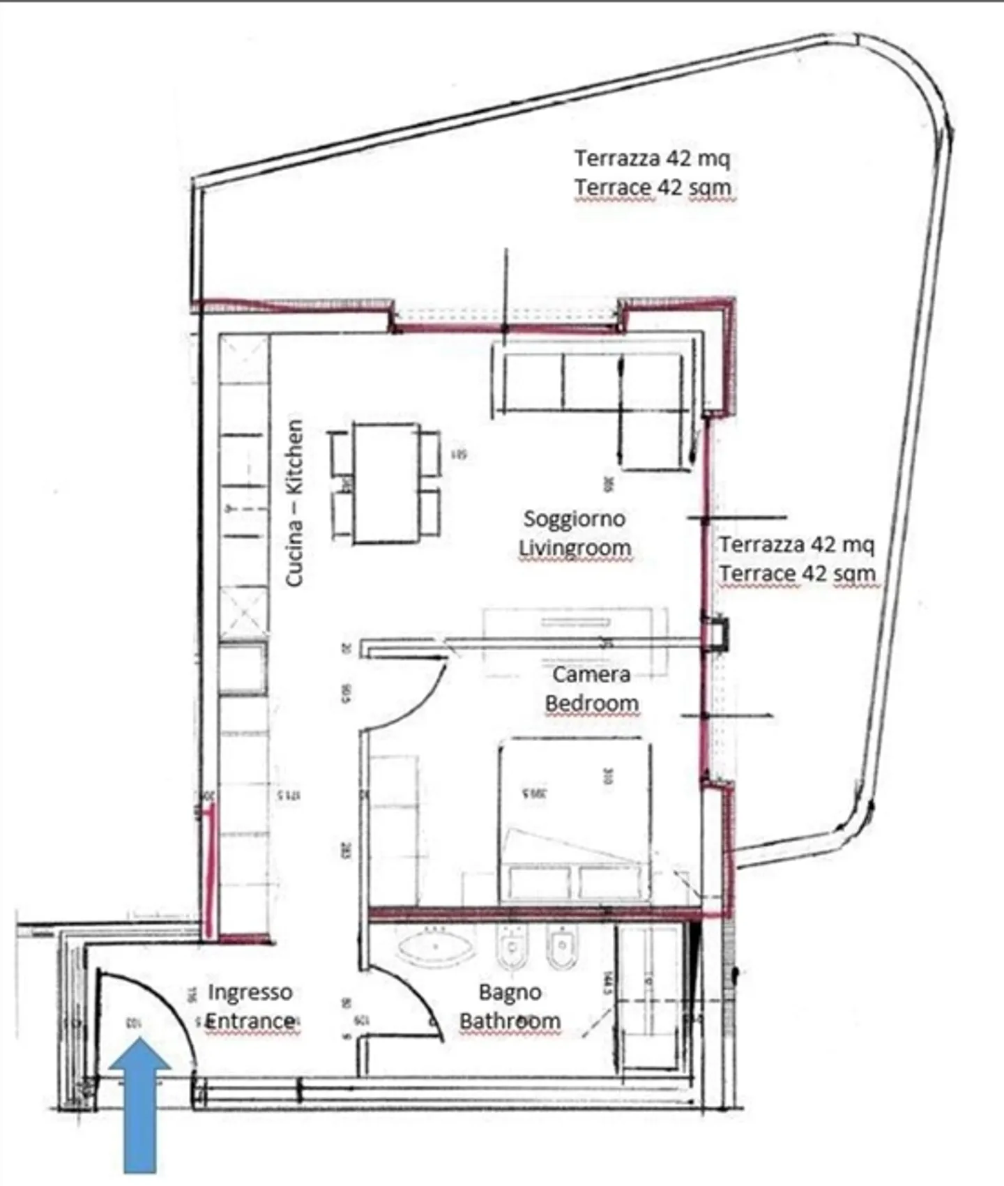
Terrazza coperta di 42 m²
Vista panoramica e sole
Garage privato e cantina
Organizza una visita
Prenota una visita oggi!
Appartamento moderno di 2,5 stanze con grande terrazza coperta di 42 m2 - vista libera
Appartamento moderno spazioso di 2,5 stanze con grande terrazza coperta di 42 m2 - vista libera
con permesso di seconda casa
Appartamento di 2,5 stanze di 60 m2 al piano rialzato con ampia vista panoramica e ottima esposizione al sole. Il design elegante e l'edificio di nuova costruzione si trovano in una posizione molto comoda con tutte le infrastrutture urbane importanti, negozi, fermate degli autobus e collegamenti autostradali:
È composto da un ingresso con armadi a muro spaziosi con lavatrice ...
Dettagli immobile
- Disponibile dal
- Su accordo
- Stanze
- 2
- Anno di costruzione
- 2014



