Appartamento in vendita - 6962 Viganello
Perché amerai questa proprietà
Accesso alla piscina comune
Ampia veranda sul giardino
Finiture di alta qualità
Organizza una visita
Prenota una visita oggi!
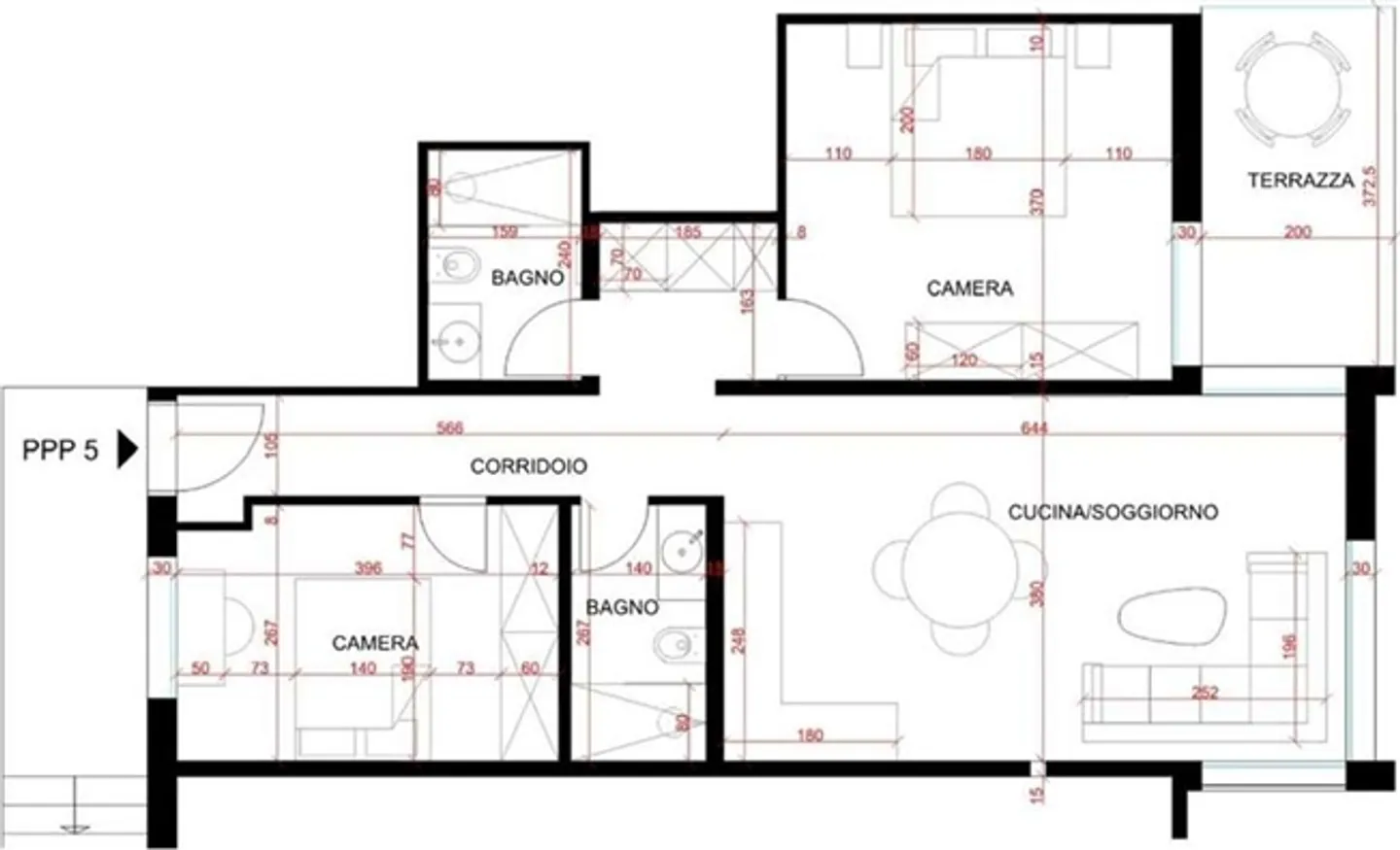
Appartamento luminoso ed elegante di 3,5 stanze, ristrutturato, con veranda e garage
Seconda casa. A pochi minuti dal centro di Lugano, in una posizione tranquilla e verdeggiante, in un piccolo edificio con piscina comune, si trova questo elegante appartamento di 3,5 stanze, che sarà ristrutturato fino a dicembre 2025. Dispone di una veranda con vista sul giardino. Ingresso, soggiorno luminoso con vista panoramica e cucina aperta di Aran Cucine, corridoio con attacco per lavatrice, spazioso bagno con rubinetteria Villeroy & Boch e WC Geberit AquaClean, oltre a una generosa c...
Dettagli immobile
- Disponibile dal
- Su accordo
- Stanze
- 3
- Anno di costruzione
- 1980



