Appartamento in vendita - 6962 Viganello
Perché amerai questa proprietà
Design efficiente energetico
Cantina e parcheggio privati
Vicino al centro di Lugano
Organizza una visita
Prenota una visita oggi!
Appartamenti di nuova costruzione a viganello
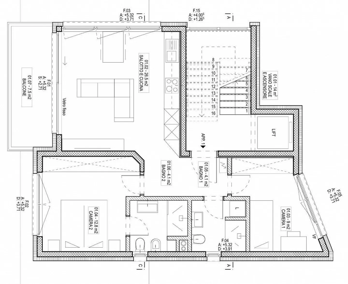
In un nuovo complesso residenziale, offriamo 7 appartamenti con 3,5 locali progettati per comfort, funzionalità ed efficienza energetica.
Ogni unità è composta da:
- soggiorno luminoso con cucina a vista,
- due camere da letto,
- due bagni,
- un accogliente ingresso.
Gli spazi comuni comprendono cantine private, locale tecnico, ripostiglio e lavanderia. Sono previsti anche posti auto comodi con predisposizione per l'alimentazione elettrica. Attualmente, i prezzi includono la cantina e un posto auto ...
Dettagli immobile
- Disponibile dal
- Su accordo
- Stanze
- 3
- Anno di costruzione
- 2025
- Superficie abitabile
- 56 m²
- Piani dell'edificio
- 7



