1 / 22

Appartamento in affitto - 6936 Cademario

3.5 rooms • 122 m² • 1° piano
CHF 540’000.-
CHF 4’426 m²

Perché amerai questa proprietà

Vista panoramica mozzafiato

Giardino privato con piscina

Soggiorno accogliente con camino

Organizza una visita

Prenota una visita oggi!

Premium Immobiliare Sagl

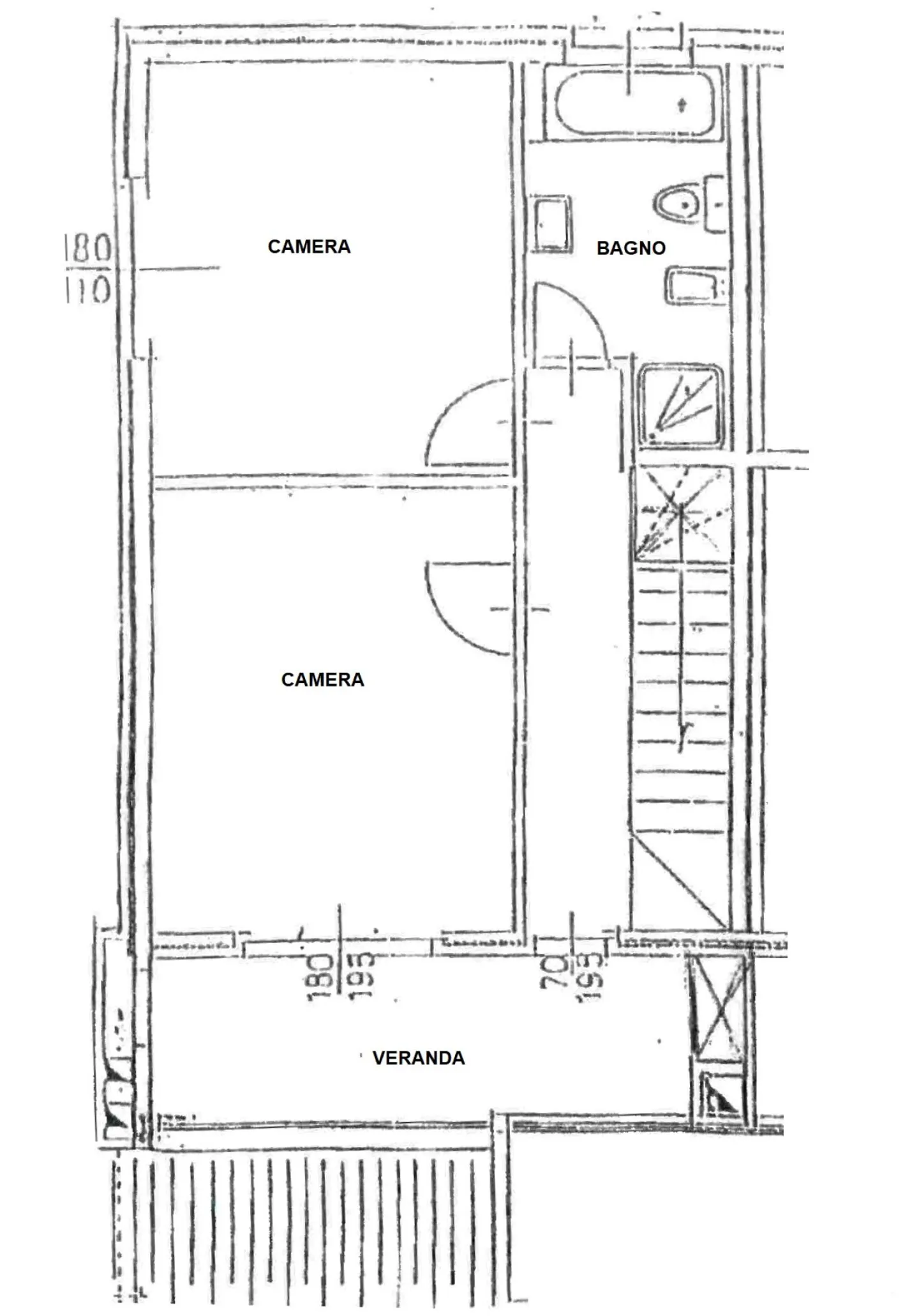
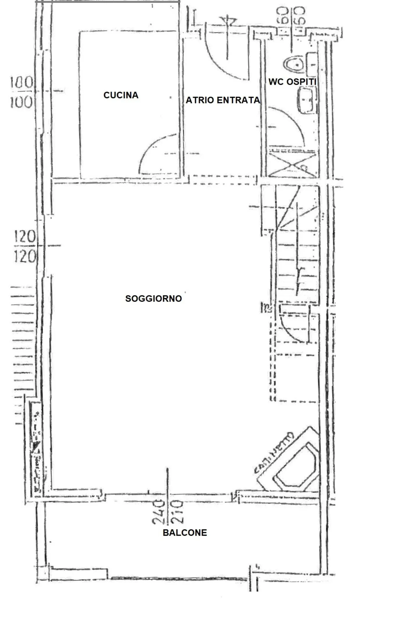
Appartamento duplex a cademario

Nel pittoresco comune di Cademario, vendiamo appartamento unico con una splendida vista aperta sulle colline circostanti. Questo rifugio tranquillo è un vero e proprio "angolo di paradiso" dove poter sfuggire al caos quotidiano e riscoprire la bellezza naturale della regione.

L'appartamento fa parte di un residence ben tenuto formato da piccoli edifici, a loro volta composti da sole quattro unità cadauno ed è un duplex di 3.5 locali di oltre 100 mq di superficie, oltre al balcone panoramico e all...

Dettagli immobile

Disponibile dal
Su accordo
Stanze
3.5
Bagni
1
Anno di costruzione
1987
Anno di ristrutturazione
2019
Superficie abitabile
122
Superficie utilizzabile
122
Piano

Caratteristiche

Balcone
Parcheggio
Piscina
Vista libera
Camino
Tv via cavo
Lavatrice
Asciugatrice
Accessibile ai disabili
Adatto ai bambini
Animali ammessi

Agenzia

Premium Immobiliare Sagl
Indirizzo:Porta Piazzetta, 6537, Grono
Ref: 554

Località

6936 Cademario

Fonti