1 / 6

Appartamento in affitto - 6900 Lugano

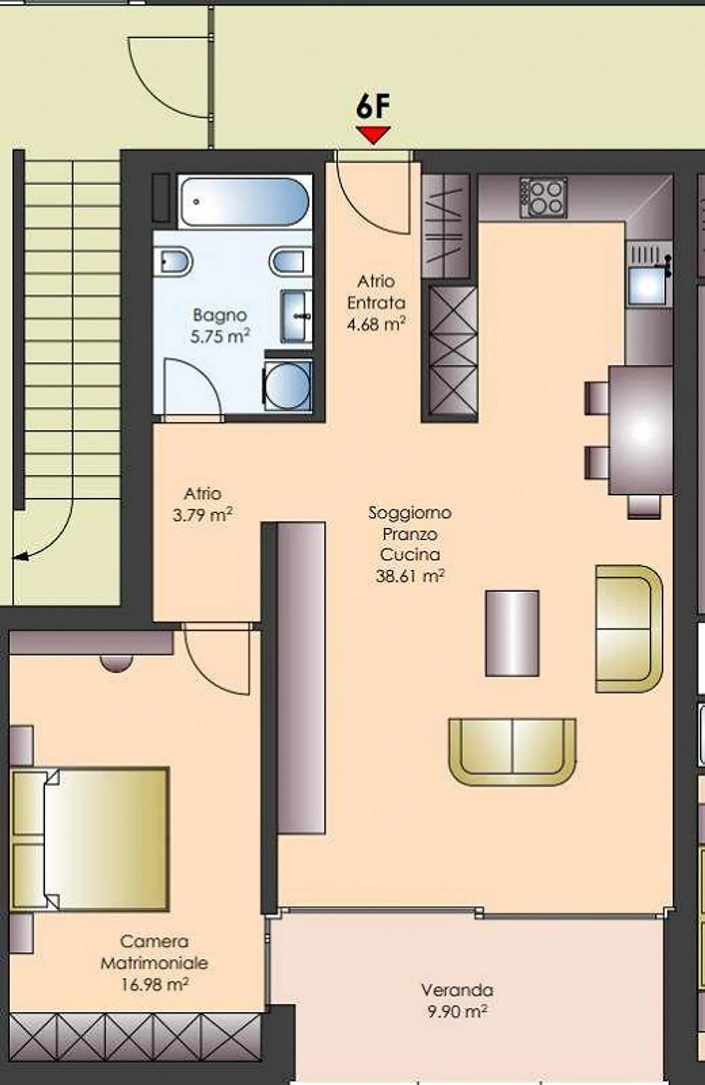
2.5 rooms • 90 m² • 6° piano
CHF 840’000.-
CHF 9’333 m²

Perché amerai questa proprietà

Unità luminosa all'ultimo piano

Veranda con vista sulla città

Include lavanderia e cantina

Organizza una visita

Prenota una visita oggi!

Appartamento 2.5 locali lugano centro

Vendesi appartamento in centro città, di recente costruzione, moderno e luminoso. Ottima posizione, comodo a tutti i servizi.

Al sesto ed ultimo piano con veranda semichiusa ed impianto daria condizionata. Colonna lavasciuga e cantina inclusi nel prezzo

Disponibile Posto in autorimessa 70.000 chf

L'appartamento in questione ad oggi è locato ma disponibile alla vendita.

Disponibile come residenza secondaria.

Per maggiori informazioni contattare Niccolo 079 814 45

44 oppure tramite mail niccolo@z...

Dettagli immobile

Disponibile dal
Su accordo
Stanze
2.5
Anno di costruzione
2017
Superficie abitabile
90
Piano

Caratteristiche

Balcone
Parcheggio
Ascensore

Agenzia

Zenit Real Estate Sagl
Zenit Real Estate Sagl
Indirizzo:Via S. Balestra, 12, 6900, Lugano
(98 reviews)
Ref: V000856

Località

6900 Lugano

Fonti