Appartamento in vendita - 6900 Lugano
Perché amerai questa proprietà
A pochi passi dal lago di Lugano
Giardino privato tranquillo
Posizione soleggiata e tranquilla
Organizza una visita
Prenota una visita con Ufficio oggi!
Lugano: Appartamento 2.5 locali
La nuova residenza Joli Lac si trova in una posizione privilegiata, a pochi passi dal lago di Lugano, in una zona tranquilla e soleggiata, servita dai mezzi pubblici e vicina a vari servizi e all'uscita autostradale di Lugano Sud.
L'accesso avviene da Via D. Fontana, una strada a senso unico nel quartiere che si sviluppa dal percorso lungolago Via Riva Caccia.
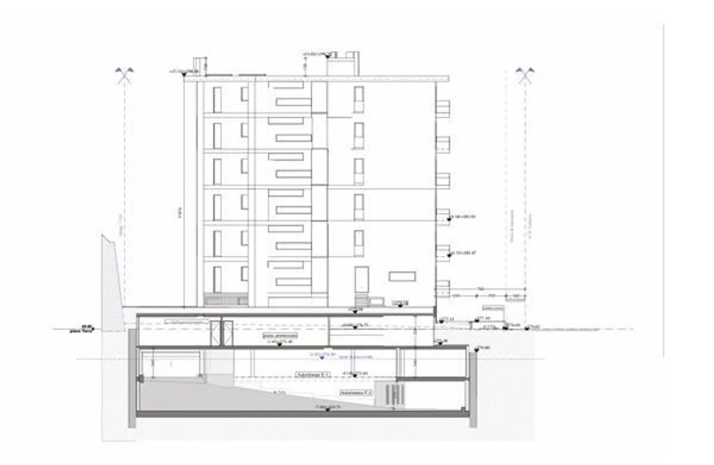
La residenza Joli Lac si estende su 7 piani sopra il suolo lungo il sole Est-Ovest.
Nei 2 piani sotterranei si trovano il garage sotterra...
Dettagli immobile
- Disponibile dal
- Su accordo
- Stanze
- 2.5
- Anno di costruzione
- 2025
- Superficie abitabile
- 100 m²
- Piano
- 1°
- Piani dell'edificio
- 7



