Appartamento in vendita - 6900 Lugano
Perché amerai questa proprietà
Spazio luminoso e nuovo
Terrazza semi-chiusa
Posizione centrale, vicino ai servizi
Organizza una visita
Prenota una visita oggi!
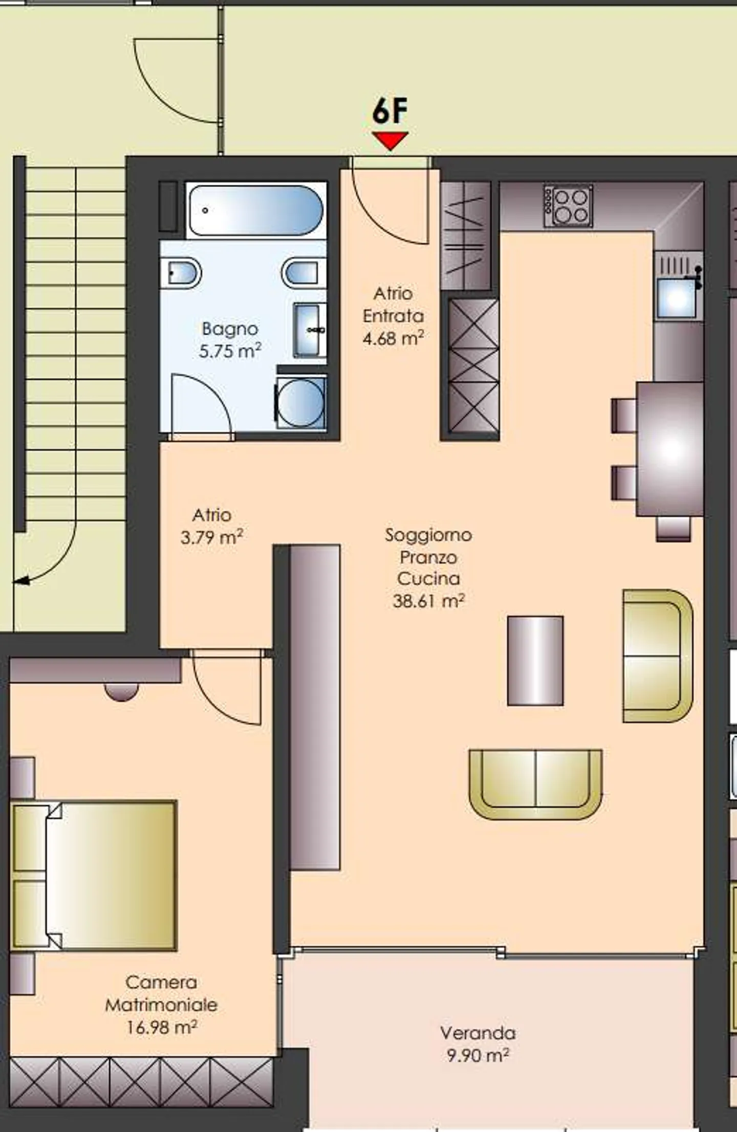
Appartamento di due e mezzo locali nel centro di lugano
In vendita un appartamento nel centro città, di nuova costruzione, moderno e luminoso. Ottima posizione, vicino a tutti i servizi.
Al sesto e ultimo piano con veranda semi-aperta e aria condizionata. Lavatrice/asciugatrice e cantina sono inclusi nel prezzo.
Un posto auto nel garage sotterraneo è disponibile per 70.000 CHF.
L'appartamento in questione è attualmente affittato, ma disponibile per la vendita.
Disponibile anche come seconda casa.
Per ulteriori informazioni contattare Niccolo 079 814 ...
Dettagli immobile
- Disponibile dal
- Su accordo
- Stanze
- 2.5
- Anno di costruzione
- 2017
- Superficie abitabile
- 90 m²
- Piano
- 6°




