Appartamento in vendita - 6900 Lugano
Perché amerai questa proprietà
A pochi passi dal Lago di Lugano
Terrazza soleggiata con vista
Zona tranquilla con servizi
Organizza una visita
Prenota una visita con Ufficio oggi!
Lugano: appartamento 2.5 locali
La nuova residenza Joli Lac si trova in una posizione privilegiata, a pochi passi dal Lago di Lugano, in una zona tranquilla e soleggiata, servita dai mezzi pubblici e vicina a vari servizi e all'uscita dell'autostrada Lugano Sud.
L'accesso avviene da Via D. Fontana, una strada a senso unico nel quartiere che si sviluppa dalla passeggiata lungolago Via Riva Caccia.
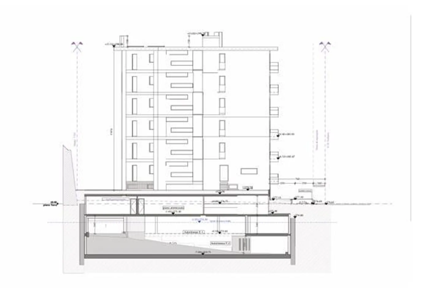
La residenza Joli Lac si estende su 7 piani sopraelevati lungo il sole Est-Ovest.
Nei 2 piani interrati si trovano il garage sotterr...
Dettagli immobile
- Disponibile dal
- Su accordo
- Stanze
- 2.5
- Anno di costruzione
- 2025
- Superficie abitabile
- 182 m²
- Piano
- 6°
- Piani dell'edificio
- 7



