1 / 7

Appartamento in affitto - 6874 Castel San Pietro

3.5 rooms • 117 m² • 1° piano
CHF 910’000.-
CHF 7’778 m²

Perché amerai questa proprietà

Ampia terrazza (24 mq)

Cucina e bagno moderni

Vista mozzafiato e posizione

Organizza una visita

Prenota una visita oggi!

METROPOLIS MPV Real Estate Sagl

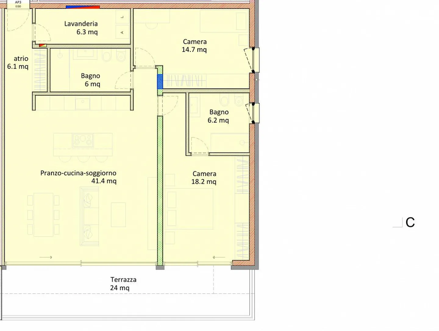
Nuovo - ampio 3.5 locali con terrazza a castel san pietro

Questo magnifico appartamento di 3.5 locali si trova al primo piano di una moderna residenza di nuova costruzione, composta da sole sei unità abitative e ultimata nel 2025. Con una superficie di 117 mq e una splendida terrazza coperta di 24 mq, offre un ambiente raffinato e confortevole, ideale per chi desidera godersi momenti di relax all'aperto.

Situato in una posizione rialzata a Castel San Pietro, nel comune di Mendrisio, l'immobile gode di un vantaggio fiscale significativo, grazie a uno dei...

Dettagli immobile

Disponibile dal
Su accordo
Stanze
3.5
Anno di costruzione
2024
Superficie abitabile
117
Piano

Caratteristiche

Balcone
Animali ammessi

Agenzia

METROPOLIS MPV Real Estate Sagl
Indirizzo:Manno, Via Cantonale, 43, 6928
Ref: NUOVO - AMPIO 3.5 LOCALI CON TERRAZZA A CASTEL SAN PIETRO.RP-7432

Località

6874 Castel San Pietro

Fonti