Appartamento in vendita - 6874 Castel San Pietro
Perché amerai questa proprietà
Vista mozzafiato sulle montagne
Cucina moderna ed elegante
Lavanderia privata per comodità
Organizza una visita
Prenota una visita con Stabile oggi!
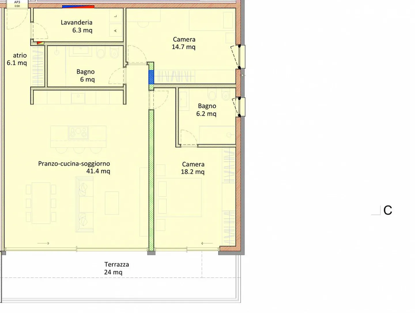
NUOVO E SPAZIOSO APPARTAMENTO 3.5 STANZE CON TERRAZZA A CASTEL SAN PIETRO
Questo magnifico appartamento di 3,5 stanze si trova al primo piano di un moderno edificio residenziale di nuova costruzione, composto da sole sei unità abitative e completato nel 2025. Con una superficie di 117 m² e una bella terrazza coperta di 24 m², offre un ambiente raffinato e confortevole, ideale per coloro che desiderano godere di momenti di relax all'aperto.
L'appartamento è situato in una posizione elevata a Castel San Pietro, nel comune di Mendrisio, e offre un vantaggio fiscale signif...
Dettagli immobile
- Disponibile dal
- 25.04.2025
- Stanze
- 3.5
- Anno di costruzione
- 2024
- Superficie abitabile
- 117 m²
- Superficie utilizzabile
- 117 m²
- Piano
- 1°



