Appartamento in vendita - 6850 Mendrisio
Perché amerai questa proprietà
Ampia terrazza con vista
Accesso con ascensore per tutti
Interni recentemente ristrutturati
Organizza una visita
Prenota una visita con Stabile oggi!
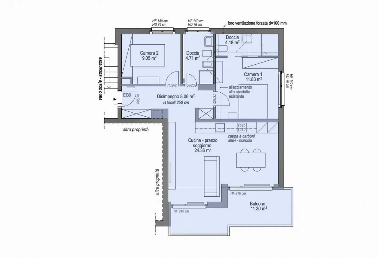
APPARTAMENTO RINNOVATO 3.5 LUMINOSO NEL DISTRETTO CENTRALE DI MENDRISIO
Ampio appartamento con 3.5 stanze e circa 70 m² di superficie abitabile, più una terrazza di circa 11 m², al piano terra di un edificio di 3 piani con facciata in mattoni, composto da sole 8 unità, costruito alla fine degli anni '70 e ben mantenuto, in una zona molto tranquilla del comune di Mendrisio.
L'unità è suddivisa come segue: ingresso con spazio per un armadio a muro, bagno spazioso con finestra e vasca da bagno, ampio soggiorno con collegamenti per la cucina (attualmente non presente, m...
Dettagli immobile
- Disponibile dal
- 15.07.2025
- Stanze
- 3.5
- Anno di costruzione
- 1977
- Superficie abitabile
- 63 m²
- Superficie utilizzabile
- 68 m²
- Piano
- 1°



