Appartamento ammobiliato in vendita - 6825 Capolago
Perché amerai questa proprietà
Vista montagna a 180°
Ampia terrazza panoramica di 20mq
Finiture di alta qualità personalizzabili
Organizza una visita
Prenota una visita con Bernasconi oggi!
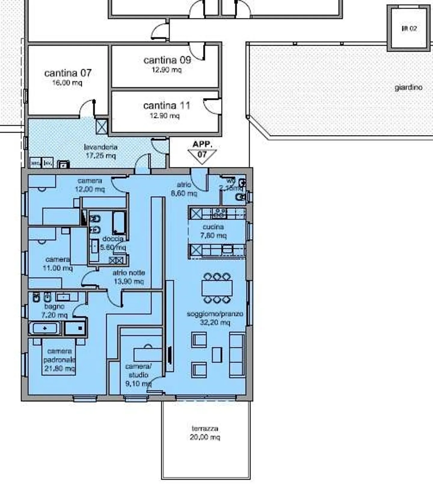
Vista monti, nuovo appartamento di 5,5 stanze con terrazza
"Il tuo nuovo e spazioso appartamento di 5,5 stanze con 155mq a Mendrisio con terrazza panoramica"
Nella bella e affascinante comune di Mendrisio, in una zona verde e tranquilla con una vista mozzafiato a 180° sulle colline, offriamo in vendita, in un edificio nuovo e moderno con finiture di alta qualità, un luminoso appartamento di 5,5 stanze a Mendrisio all'ultimo piano con terrazza panoramica e composto da:
-Ingresso;
-Soggiorno di 32 mq con accesso alla terrazza;
-Cucina aperta;
-Corridoio;
-3 ca...
Dettagli immobile
- Disponibile dal
- Su accordo
- Stanze
- 5.5
- Anno di costruzione
- 2022
- Superficie abitabile
- 155 m²
- Piano
- 1°
- Piani dell'edificio
- 1


