1 / 14

Appartamento in affitto - 6814 Cadempino

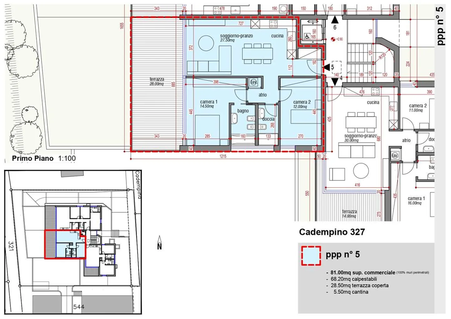
3 rooms • 81 m²
CHF 762’000.-
CHF 9’407 m²

Perché amerai questa proprietà

Terrazza spaziosa per relax

Giardini privati per tranquillità

Riscaldamento e raffreddamento a pavimento

Organizza una visita

Prenota una visita con The oggi!

The Agency
The Agency
Questa descrizione è stata tradotta automaticamente da Tedesco.

Stai cercando un appartamento moderno con una grande terrazza a Cadempino in una zona tranquilla?

Ti offriamo un edificio con 6 appartamenti in vendita che sarà costruito a breve e dispone di un ascensore, giardini privati e terrazze. Si trova in un'oasi di comfort e offre tranquillità e vicinanza ai servizi.

L'appartamento al primo piano può essere personalizzato e comprende:

- Ampia zona giorno con soggiorno e cucina a vista che si affaccia su una grande terrazza

- Camera matrimoniale con bagno pr...

Dettagli immobile

Disponibile dal
Su accordo
Stanze
3
Bagni
2
Anno di costruzione
2026
Superficie abitabile
81
Superficie terrazza
28.5

Caratteristiche

Ascensore

Agenzia

The Agency
Indirizzo:Via Camossatt, 13, 6535, Roveredo
Ref: Cadempino-App P1 3,5 n.5

Località

6814 Cadempino

Fonti