Appartamento in vendita - 6814 Cadempino
Perché amerai questa proprietà
Giardini spaziosi al piano terra
Vista montagna mozzafiato
Sistema di riscaldamento efficiente
Organizza una visita
Prenota una visita con TRIPEPI oggi!
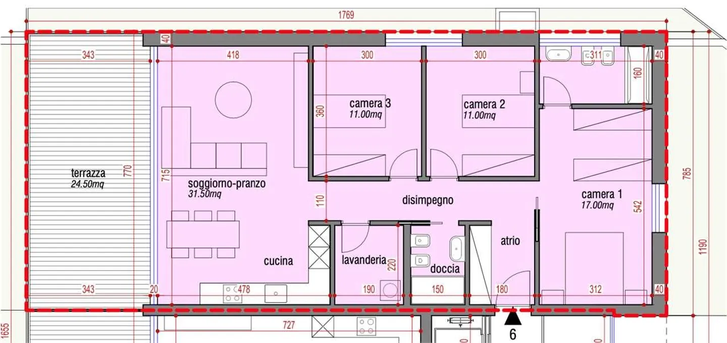
Nuove abitazioni quattro locali
Nel comune di Cadempino, in una zona residenziale soleggiata e ben collegata in Via Roncaccio, offriamo appartamenti in vendita che sono in fase di costruzione e faranno parte di una residenza costruita secondo le linee guida per il rilascio del Certificato Energetico Cantonale per Edifici (CECE).
Il progetto prevede la costruzione di una residenza con sole sei appartamenti su due livelli, oltre a un piano interrato per cantine e veicoli.
Gli appartamenti al piano terra dispongono di ampi giardi...
Dettagli immobile
- Disponibile dal
- Su accordo
- Stanze
- 4
- Anno di costruzione
- 2025
- Superficie abitabile
- 124 m²



