1 / 8

Appartamento in vendita - 6814 Cadempino

3.5 stanze • 81 m²
CHF 804’000
CHF 9’926 m²

Perché amerai questa proprietà

Giardino privato di oltre 50 mq

Zona giorno luminosa con cucina moderna

Caratteristiche di smart home incluse

Organizza una visita

Prenota una visita con Ebuyhouse oggi!

Ebuyhouse Real Estate
Ebuyhouse sagl

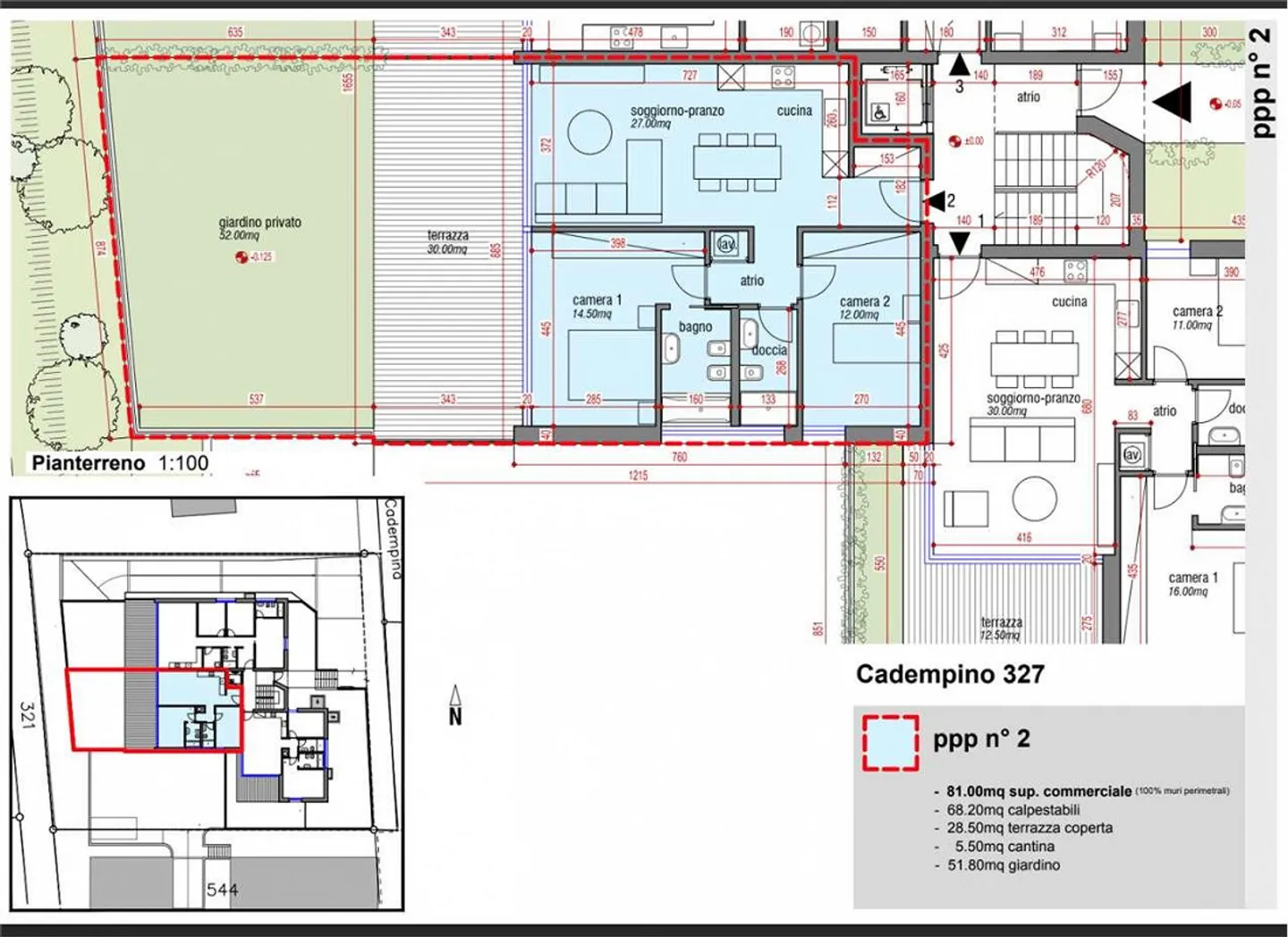
Ebuyhouse propone in vendita a Cadempino un elegante appartamento 3.5 locali al piano terra con giardino privato, situato in una zona tranquilla e riservata, comoda ai principali servizi.

Parte di una nuova residenza di sole sei unità, l'appartamento si distingue per gli spazi generosi, le grandi vetrate e l'accesso diretto a un giardino pianeggiante di oltre 50 mq, ideale per chi cerca relax e privacy.

Zona giorno luminosa con cucina a vista, due camere da letto e doppi servizi.

Finiture moderne, ...

Dettagli immobile

Disponibile dal
Su accordo
Stanze
3.5
Bagni
2
Anno di costruzione
2026
Superficie abitabile
81
Superficie giardino
51
Superficie terrazza
28

Caratteristiche

Giardino
Ascensore

Agenzia

Ebuyhouse sagl
Indirizzo:Riva Paradiso 4, 6900, Lugano
Ref: ST-2-LS
Online da
20/09/2025
un mese fa

Località

6814 Cadempino

Fonti