Appartamento in vendita - St. Gallerstrasse 68, 9032 Engelburg
Perché amerai questa proprietà
Area giardino privata
Ampio soggiorno aperto
Posizione residenziale tranquilla
Organizza una visita
Prenota una visita con Kunzmann oggi!
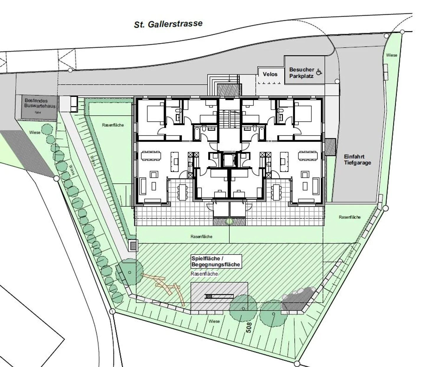
Condominio attraente di 4,5 stanze con giardino a Engelburg
In una posizione ricercata a Engelburg, vi aspetta questo appartamento di alta qualità con 4,5 stanze al piano terra e una generosa parte di giardino. L'appartamento colpisce per un piano ben pensato, stanze luminose e un accesso diretto all'area esterna privata - ideale per famiglie e coppie.
Punti salienti a colpo d'occhio
- 4,5 stanze al piano terra
- Parte di giardino privata (ca. 54 m²)
- Area salotto con molta privacy
- Ampio soggiorno/pranzo con cucina aperta (ca. 42,9 m²)
- 3 camere da letto (...
Dettagli immobile
- Disponibile dal
- Su accordo
- Stanze
- 4.5
- Anno di costruzione
- 2027
- Superficie abitabile
- 114 m²
- Piano
- Terra
- Piani dell'edificio
- 4



