Appartamento in vendita - 6514 Sementina
Perché amerai questa proprietà
Zona giorno e cucina open space
Terrazza coperta con accesso giardino
Orientamento soleggiato per calore
Organizza una visita
Prenota una visita oggi!
Spazioso appartamento di 4.5 locali con giardino
L'appartamento in vendita nel comune di Sementina, in una zona molto tranquilla e con comodi servizi, offre un'ottima opportunità abitativa.
La vicinanza all'autostrada e alla stazione ferroviaria lo rende facilmente accessibile e garantisce una buona mobilità.
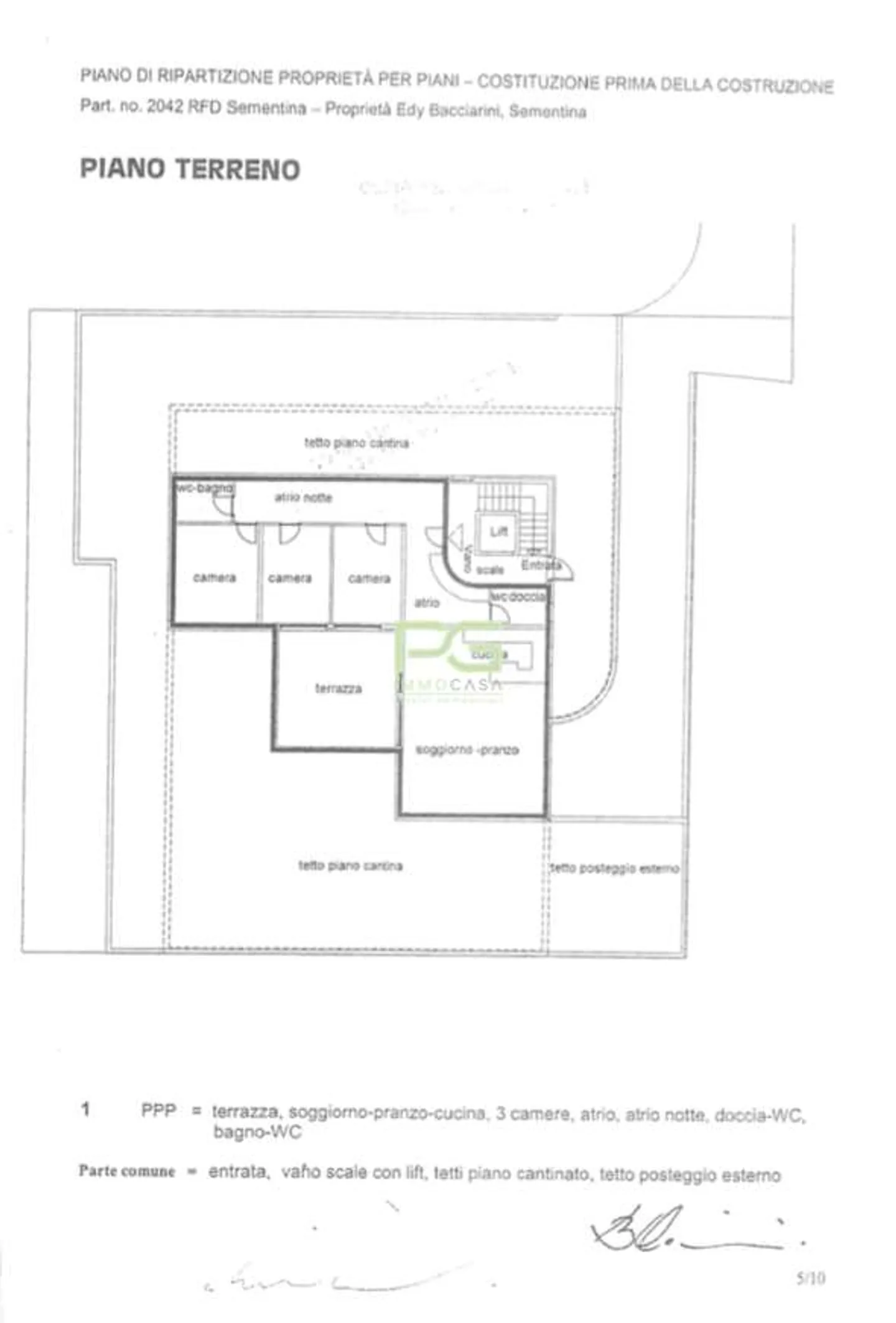
L'appartamento dispone di 4,5 locali con una superficie abitabile totale di 131m² e comprende una zona giorno e cucina a vista, 3 ampie camere da letto, di cui una dotata di bagno con vasca, 1 ulteriore bagno con doccia, numerosi armadi a...
Dettagli immobile
- Disponibile dal
- Su accordo
- Stanze
- 4.5
- Anno di costruzione
- 2010
- Superficie abitabile
- 131 m²
- Piano
- Terra



