Appartamento in vendita - Via Cantonale 57, 6652 Tegna
Perché amerai questa proprietà
Posizione privilegiata vicino ai centri urbani
Goditi il miglior microclima
Accesso al cortile comune
Organizza una visita
Prenota una visita con Domusdea oggi!
Investimento immobiliare attraente in posizione strategica
Investimento immobiliare attraente in posizione strategica
Tegna - Offriamo un investimento immobiliare nel comune di Tegna, che si trova in una posizione strategica.
L'edificio in cui si trova la proprietà è all'ingresso di Tegna, che appartiene alle Terre di Pedemonte. La posizione consente di raggiungere i centri urbani in pochi minuti in auto, godendo al contempo della natura verde. È particolarmente degno di nota che il comune di Tegna offre uno dei migliori microclimi di tutta la Svizzera!
L'...
Dettagli immobile
- Disponibile dal
- 17.03.2025
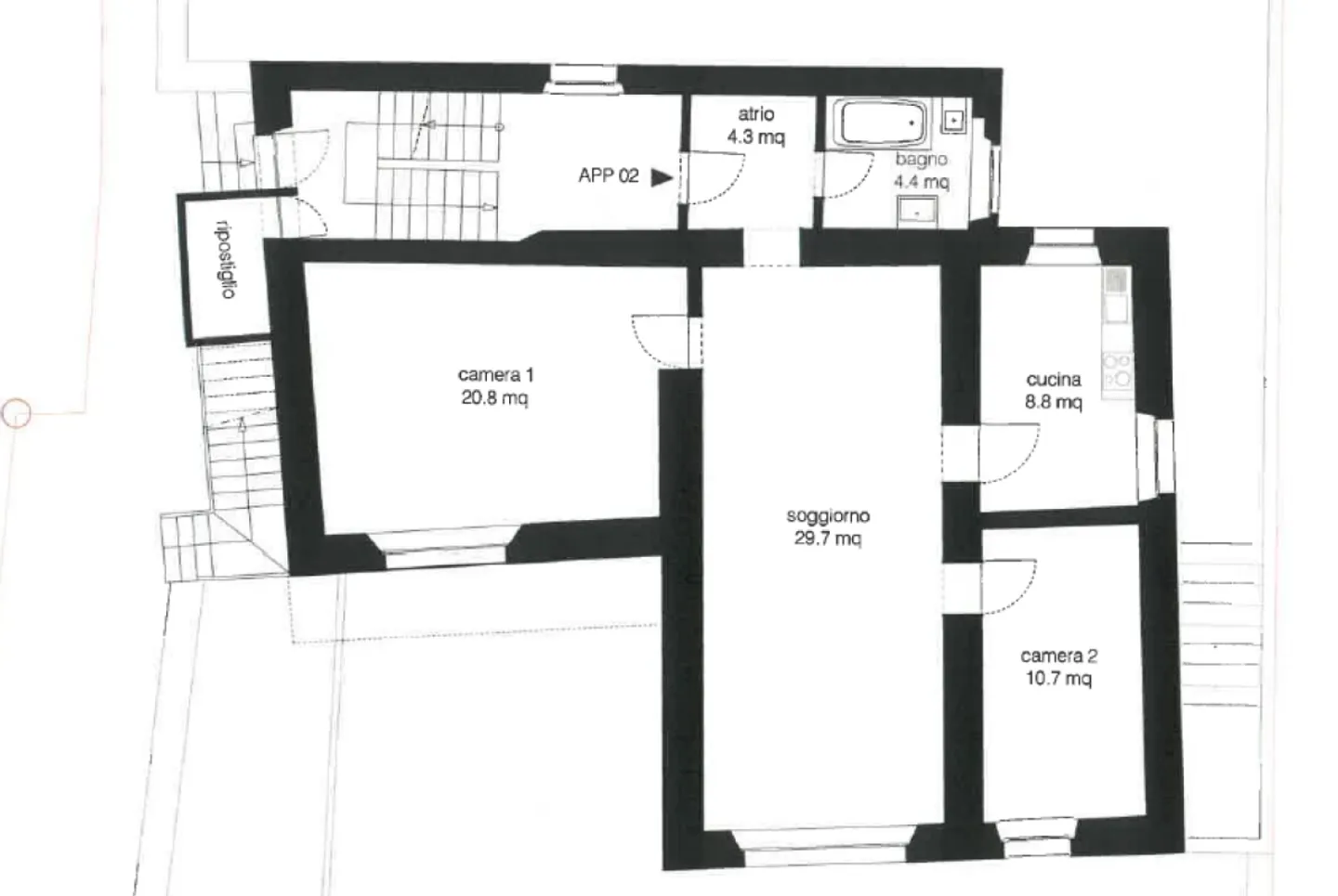
- Stanze
- 3.5
- Superficie abitabile
- 80 m²
- Superficie utilizzabile
- 80 m²
- Piano
- 1°
- Piani dell'edificio
- 3



