Duplex in vendita - Route De La Jorette 52, 1899 Torgon
Perché amerai questa proprietà
Terrazza soleggiata con vista
Bagno e cucina ristrutturati
Vicino agli impianti e servizi
Organizza una visita
Prenota una visita con Immo-Soluce oggi!
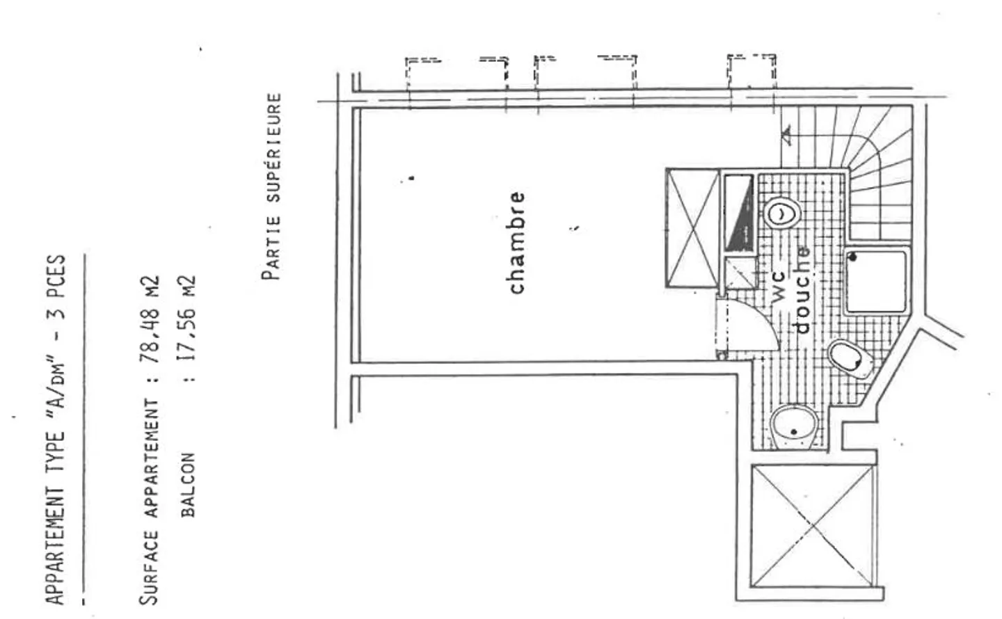
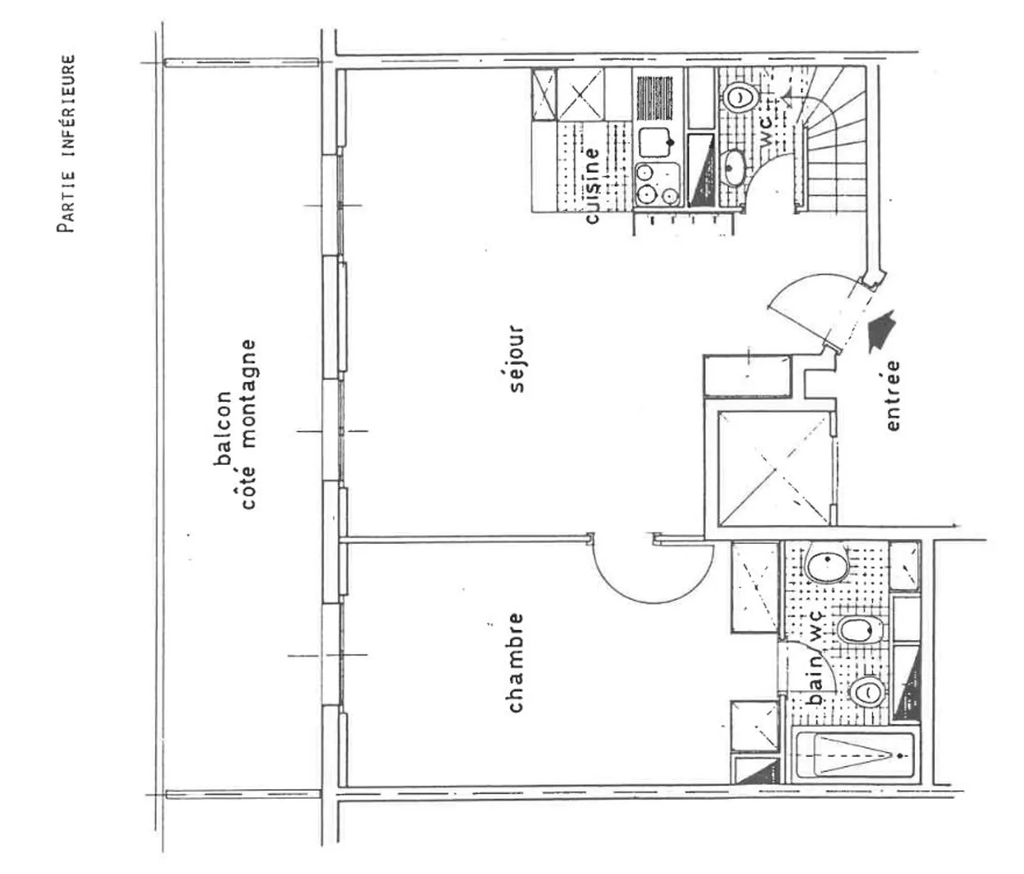
Duplex 3.5 stanze
ESCLUSIVO! Grande duplex arredato di 3,5P con terrazza nel cuore di Torgon
DA VEDERE SENZA RITARDO!
Incantevole duplex arredato di 3,5 stanze con 78 m2 di superficie abitabile (87 m2 ponderati) e una grande terrazza soleggiata di 18 m2 nel cuore del villaggio di Torgon.
Situato al 5° piano con ascensore nella residenza << Le Serve >>, gode di una vista sulla montagna. L'appartamento è stato ristrutturato, compreso il cambio delle finestre isolanti in legno e metallo e la ristrutturazion...
Dettagli immobile
- Disponibile dal
- Su accordo
- Stanze
- 3.5
- Superficie abitabile
- 80 m²




