Appartamento in vendita - Place Du Collège 5, 1415 Molondin
Perché amerai questa proprietà
Nuovo con finiture moderne
Ampia terrazza con vista
Villaggio tranquillo vicino a Losanna
Organizza una visita
Prenota una visita con Catherine oggi!
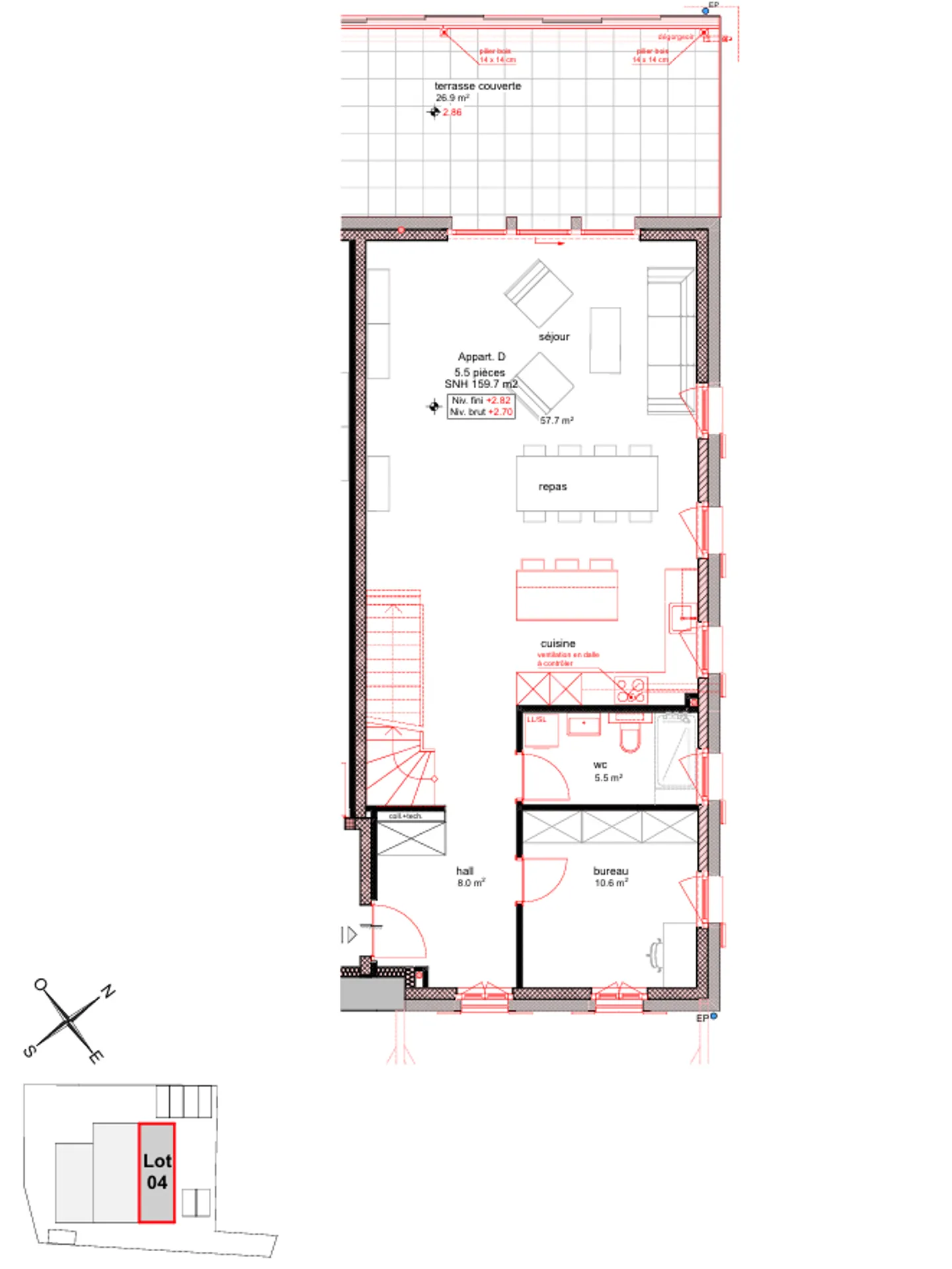
Appartamento 5.5 stanze
Appartamento duplex nuovo di 5.5 stanze 159 m2 con terrazza
CANTIERE in CORSO - con scelta delle finiture.
Residenza piena di fascino in un lotto di 4 appartamenti nuovi in vendita su progetto.
Disponibilità: secondo accordo.
Questo spazioso attico di carattere, sistemato nel corpo di fattoria, è costruito a nuovo con materiali moderni e di qualità, pensato per il comfort quotidiano.
Situato all'ingresso del caratteristico villaggio di Molondin, in un ambiente tranquillo e verde, questo duplex di 5.5...
Dettagli immobile
- Disponibile dal
- Su accordo
- Stanze
- 5.5
- Bagni
- 3
- Superficie abitabile
- 160 m²



