Appartamento in vendita - Chemin Du Clos 5, 1958 Uvrier
Perché amerai questa proprietà
Ampio soggiorno luminoso
Terrazza a sud-ovest
Vicino ai servizi
Organizza una visita
Prenota una visita oggi!
Nuova residenza in fase di completamento; Piano giardino a Sion
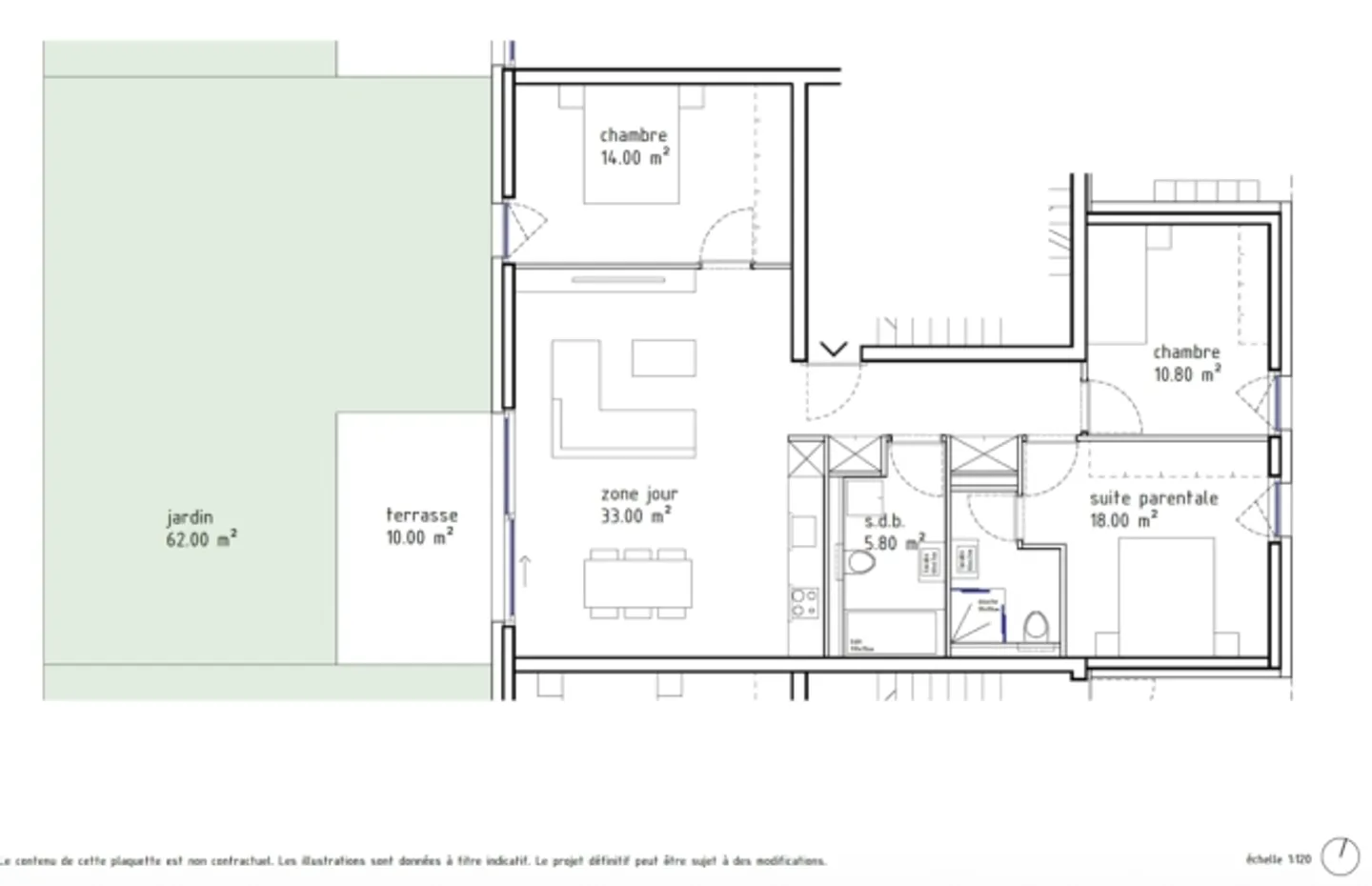
Appartamento passante con giardino e terrazza
* Bel soggiorno con vetrate, superficie 33 m2 con cucina a vista
* Suite con bagno con doccia 18 m2
* 2 Camere da letto 14 m2 e 11 m2
* Terrazza 10 m2 esposizione Sud-Ovest, giardino 62 m2
Nuovo progetto immobiliare
Nuovo progetto immobiliare a Uvrier (Rue du Clos) che offre nuovi appartamenti vicino a tutti i servizi.
Questo progetto è composto da 10 edifici su 3 livelli (piano terra, primo piano e attico) appartamenti che vanno dal monolocale al 6 locali ...
Dettagli immobile
- Disponibile dal
- Su accordo
- Stanze
- 4.5
- Anno di costruzione
- 2024



