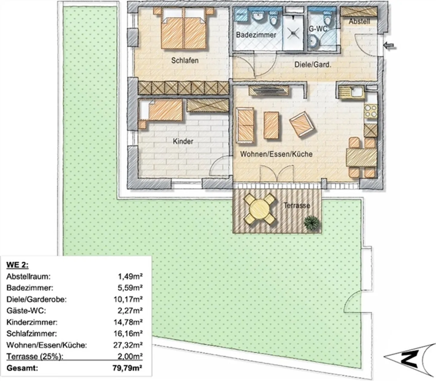
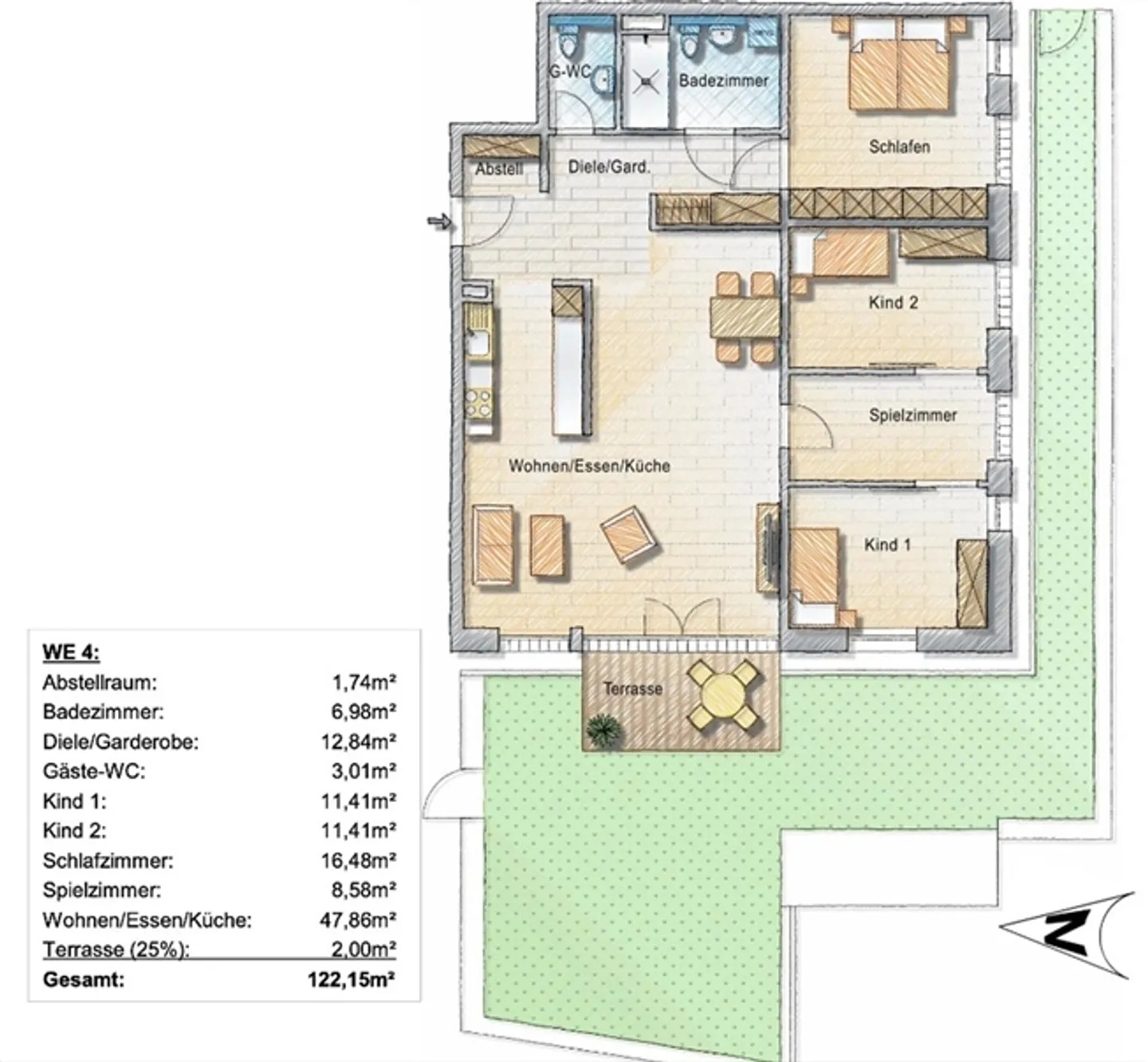
Appartamento in vendita - 4310 Rheinfelden
4.5 stanze • 4° piano
CHF 644’525
-
Perché amerai questa proprietà
Ampio balcone con vista
Cucina moderna con isola
Soggiorno luminoso e affascinante
Organizza una visita
Prenota una visita oggi!
Dettagli immobile
- Disponibile dal
- Su accordo
- Stanze
- 4.5
- Anno di costruzione
- 2025
- Piano
- 4°
Caratteristiche
Balcone
Agenzia
Nessun dettaglio dell'agenzia disponibile
Online da
18/12/2025
11 ore fa
Località
4310 Rheinfelden



