1 / 13

Appartamento in affitto - Chemin Des Dailles 40a, 1870 Monthey

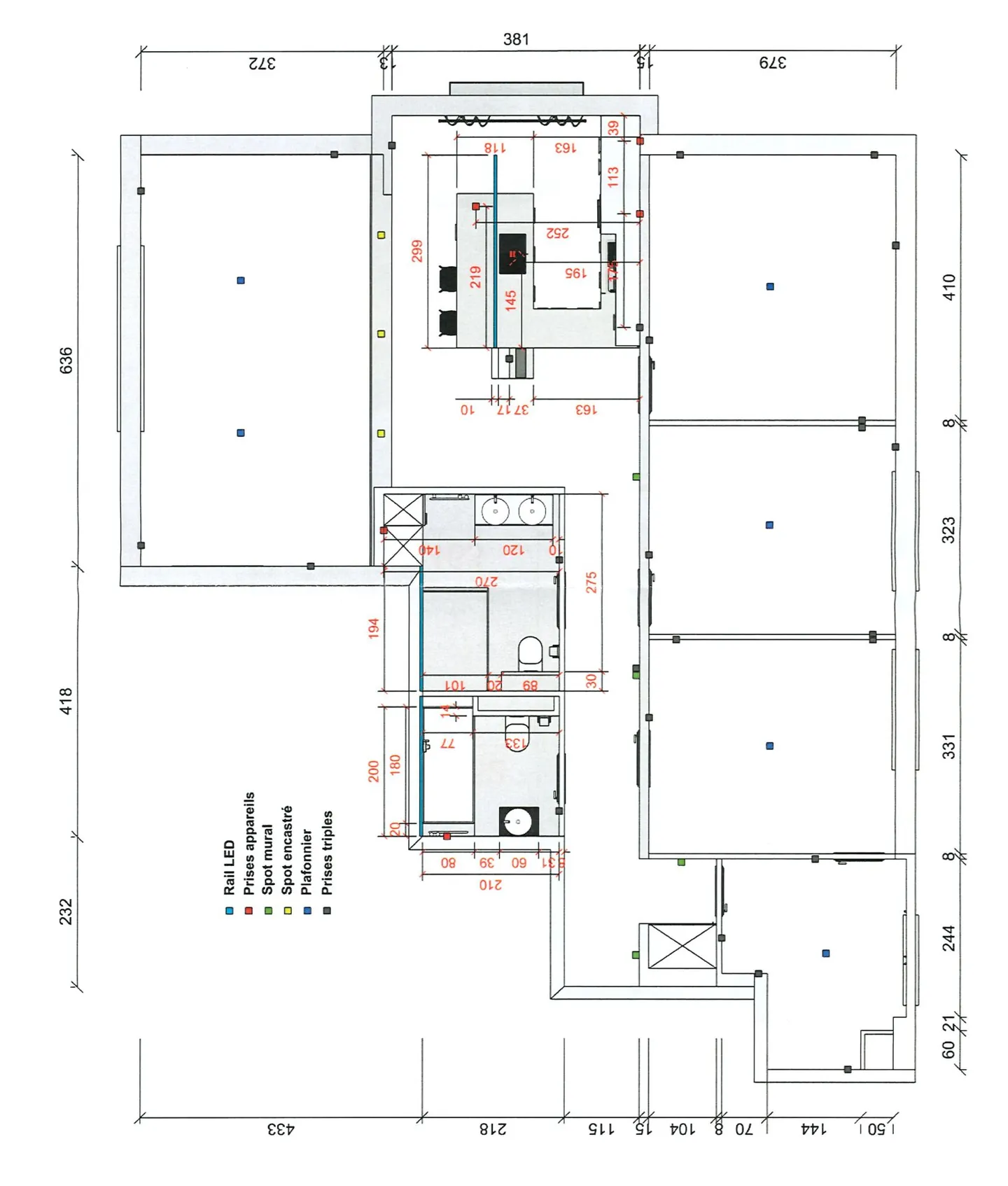
5 rooms • 116 m² • 4° piano
CHF 635’000.-
CHF 5’474 m²

Perché amerai questa proprietà

Vista mozzafiato sulle montagne

Due balconi soleggiati

Completamente ristrutturato nel 2024

Organizza una visita

Prenota una visita con Serhat oggi!

Serhat Polat
Foti Immobilier
Questa descrizione è stata tradotta automaticamente da Francese.

Appartamento di investimento di 5,5 stanze con 2 balconi e bella vista sulle montagne

Idealmente situato in un quartiere tranquillo, questo appartamento offre il comfort della tranquillità pur essendo a pochi minuti a piedi da tutti i servizi del centro di Monthey.

Questo appartamento è stato completamente ristrutturato nel 2024.

Composizione dell'immobile:

* Accogliente ingresso con una camera che si affaccia sul piccolo balcone

* Cucina aperta che si affaccia sulla sala da pranzo e sul soggiorno...

Dettagli immobile

Disponibile dal
Su accordo
Stanze
5
Anno di costruzione
1972
Anno di ristrutturazione
2024
Superficie abitabile
116
Piano
Piani dell'edificio
5

Caratteristiche

Balcone
Ascensore

Agenzia

Foti Immobilier
Foti Immobilier
Indirizzo:Rue de Venise 8, 1870, Monthey
(11 reviews)
Ref: afafe568-0fdb-11f0-a9d5-069ae14c7a06

Località

Chemin Des Dailles 40a, 1870 Monthey

Fonti